FREEHOLD
The Property
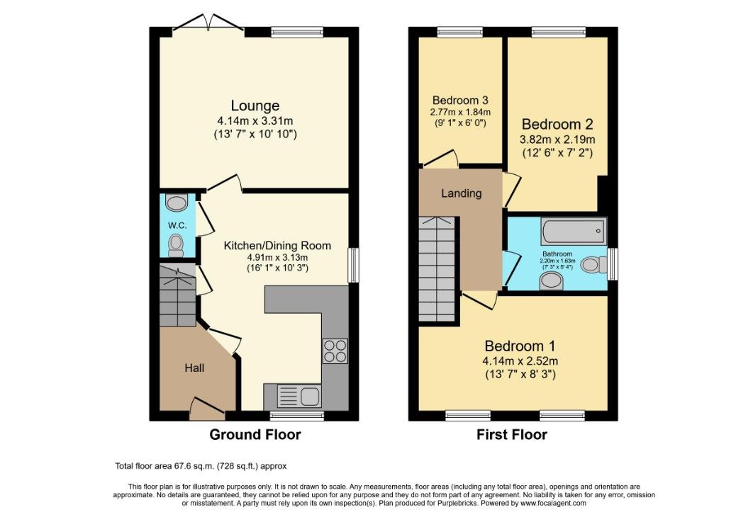
Modern Three-Bedroom Semi-Detached Family Home in a Quiet Cul-de-Sac
Situated in a peaceful residential cul-de-sac on the popular Bakehouse Close in Wigan, this beautifully presented three-bedroom semi-detached family with generous living space, a private garden, and driveway parking, this home is perfect for first-time buyers, young families, or down sizer's looking for comfort and convenience.
Upon entering the property, you’re welcomed into a bright and airy entrance hall, which gives access to a convenient ground floor cloakroom/W.C.—ideal for guests or busy mornings. The ground floor boasts a spacious and sociable open-plan kitchen and dining room, complete with modern fitted units, integrated appliances, and ample worktop space.
To the rear, the lounge is a cosy and relaxing retreat, filled with natural light thanks to large windows and patio doors that lead out to the garden, creating a lovely connection between indoor and outdoor living spaces.
Upstairs, the first floor features three well-proportioned bedrooms, offering flexible living for families, guests, or even a home office. The family bathroom is modern and stylish, fitted with a white suite and contemporary finishes. There is also an attic with plenty of storage.
Externally, the property enjoys driveway parking to the front, providing off-road parking for multiple vehicles. The front garden adds kerb appeal, while the enclosed rear garden offers a safe and private space for children to play, summer barbecues, or relaxing evenings in the sun. There is also a CCTV system in place.
Located in a convenient spot within easy reach of local schools, shops, transport links, and Wigan town centre, this home offers the perfect blend of suburban peace and accessibility. Excellent commuter links via nearby road networks and public transport make this an ideal base for daily travel. No chain. Book viewings online 24/7.
Material information:
The information above has been provided by the vendor, agent and GOTO Group and may not be accurate. Please refer to the property’s Legal Pack. (You can download this once you have registered your interest against the property). This pack provides material information which will help you make an informed decision before proceeding. It may not yet include everything you need to know so please make sure you do your own due diligence as well.
CURRENT 82/95 POTENTIAL
This property is offered for sale via the Reservation Fee Service which is a flexible and buyer friendly method of purchase. The purchaser will be given 90 working days in which to complete the transaction from the date the Draft Contract is issued by the sellers solicitor.
By giving a buyer time to exchange contracts on the property, normal residential finance can be arranged. The Buyer’s Premium secures the transaction and takes the property off the market. Fees paid to the Merchant may be considered as part of the chargeable consideration for the property and be included in the calculation for stamp duty liability. Further clarification on this must be sought from your legal representative.
The buyer will be required to give the Merchant authority to sign the Reservation Form on their behalf and to confirm acceptance of the Terms and Conditions prior to solicitors being instructed. Copies of the Reservation Form and all Terms and Conditions can be found in the Information Pack which can be downloaded from our website or requested from our Merchant.
If the vendor accepts an offer, the buyer will be required to make payment of a non-refundable reservation fee of £3,000 including VAT and a legal pack charge of £396 including VAT. This reserves the property for the buyer during the Reservation Period. Any additional fees and charges over and above this will be confirmed within the terms and conditions available on the website.
The Buyer's Premium is in addition to the final selling price and is considered within calculations for Stamp Duty Land Tax.
All buyers will be required to verify their identity and provide proof of how the purchase will be funded.
An EPC is broadly like the labels provided with domestic appliances such as refrigerators and washing machines. Its purpose is to record how energy efficient a property is as a building. The certificate will provide a rating of the energy efficiency and carbon emissions of a building from A to G, where A is very efficient, and G is inefficient. The data required to allow the calculation of an EPC includes the age and construction of the building, its insulation and heating method. EPCs are produced using standard methods with standard assumptions about energy usage so that the energy efficiency of one building can easily be compared with another building of the same type. The Energy Performance of Buildings Directive (EPBD) requires that all buildings have an EPC when they are marketed for sale or for let, or when houses are newly built. EPCs are valid for 10 years, or until a newer EPC is prepared. During this period the EPC may be made available to buyers or new tenants.
By setting a proxy bid, the system will automatically bid on your behalf to maintain your position as the highest bidder, up to your proxy bid amount. If you are outbid, you will be notified via email so you can opt to increase your bid if you so choose.
If two of more users place identical bids, the bid that was placed first takes precedence, and this includes proxy bids.
Another bidder placed an automatic proxy bid greater or equal to the bid you have just placed. You will need to bid again to stand a chance of winning.