FREEHOLD
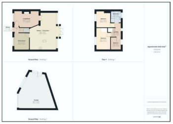
Welcome to this amazing three-bedroom semi-detached home in the vibrant village of Tankersley. This property is truly exceptional, offering a delightful surprise in the form of a stunning extension at the rear of the house.
The centrepiece of this home is the beautiful extension that seamlessly blends an open-plan living and kitchen area. The kitchen island is a standout feature, making it the heart of the home where culinary adventures unfold. The space is perfect for entertaining, and the open layout allows for easy interaction with family and guests.
In addition to the open-plan area, the property boasts a second reception area, adding versatility to your living spaces. There's also a dedicated family dining area, creating a perfect setting for shared meals and memorable gatherings.
Upstairs, you'll find three spacious bedrooms, providing ample room for your family to rest and rejuvenate. The modern family bathroom is thoughtfully designed, catering to the comfort and convenience of the household.
Moving outside, the property features a generous private enclosed garden with access to the field behind. This outdoor space is a haven for relaxation and play, with ample room for gardening and outdoor activities. To the rear of the property, you'll discover a double garage, offering valuable storage and parking space. In the front, a private driveway adds convenience for your vehicles.
This home embodies modern living, practicality, and elegance. It's more than just a house; it's a place where you can live, entertain, and make lasting memories. Don't miss the opportunity to make this remarkable property your own.
Tenure: Freehold
Council Tax: A
Material information:
The information above has been provided by the vendor, agent and GOTO Group and may not be accurate. Please refer to the property’s Legal Pack. (You can download this once you have registered your interest against the property). This pack provides material information which will help you make an informed decision before proceeding. It may not yet include everything you need to know so please make sure you do your own due diligence as well.
CURRENT 69/84 POTENTIAL
This property is offered for sale via the Reservation Fee Service which is a flexible and buyer friendly method of purchase. The purchaser will be given 90 working days in which to complete the transaction from the date the Draft Contract is issued by the sellers solicitor.
By giving a buyer time to exchange contracts on the property, normal residential finance can be arranged. The Buyer’s Premium secures the transaction and takes the property off the market. Fees paid to the Merchant may be considered as part of the chargeable consideration for the property and be included in the calculation for stamp duty liability. Further clarification on this must be sought from your legal representative.
The buyer will be required to give the Merchant authority to sign the Reservation Form on their behalf and to confirm acceptance of the Terms and Conditions prior to solicitors being instructed. Copies of the Reservation Form and all Terms and Conditions can be found in the Information Pack which can be downloaded from our website or requested from our Merchant.
If the vendor accepts an offer, the buyer will be required to make payment of a non-refundable reservation fee of £3,720 including VAT and a legal pack charge of £372 including VAT. This reserves the property for the buyer during the Reservation Period. Any additional fees and charges over and above this will be confirmed within the terms and conditions available on the website.
The Buyer's Premium is in addition to the final selling price and is considered within calculations for Stamp Duty Land Tax.
All buyers will be required to verify their identity and provide proof of how the purchase will be funded.
An EPC is broadly like the labels provided with domestic appliances such as refrigerators and washing machines. Its purpose is to record how energy efficient a property is as a building. The certificate will provide a rating of the energy efficiency and carbon emissions of a building from A to G, where A is very efficient, and G is inefficient. The data required to allow the calculation of an EPC includes the age and construction of the building, its insulation and heating method. EPCs are produced using standard methods with standard assumptions about energy usage so that the energy efficiency of one building can easily be compared with another building of the same type. The Energy Performance of Buildings Directive (EPBD) requires that all buildings have an EPC when they are marketed for sale or for let, or when houses are newly built. EPCs are valid for 10 years, or until a newer EPC is prepared. During this period the EPC may be made available to buyers or new tenants.
By setting a proxy bid, the system will automatically bid on your behalf to maintain your position as the highest bidder, up to your proxy bid amount. If you are outbid, you will be notified via email so you can opt to increase your bid if you so choose.
If two of more users place identical bids, the bid that was placed first takes precedence, and this includes proxy bids.
Another bidder placed an automatic proxy bid greater or equal to the bid you have just placed. You will need to bid again to stand a chance of winning.