01844 355023    

Flat 1 80 Elm Grove, Hayling Island, Hampshire, PO11 9EH

  • Conditional Online Auction Sale
  • Bedrooms: 1

GOTO GROUP OFFER FOR SALE THIS 1 BEDROOM FLAT - LOCATED IN HAYLING ISLAND

Tenure

Share of Freehold

Description

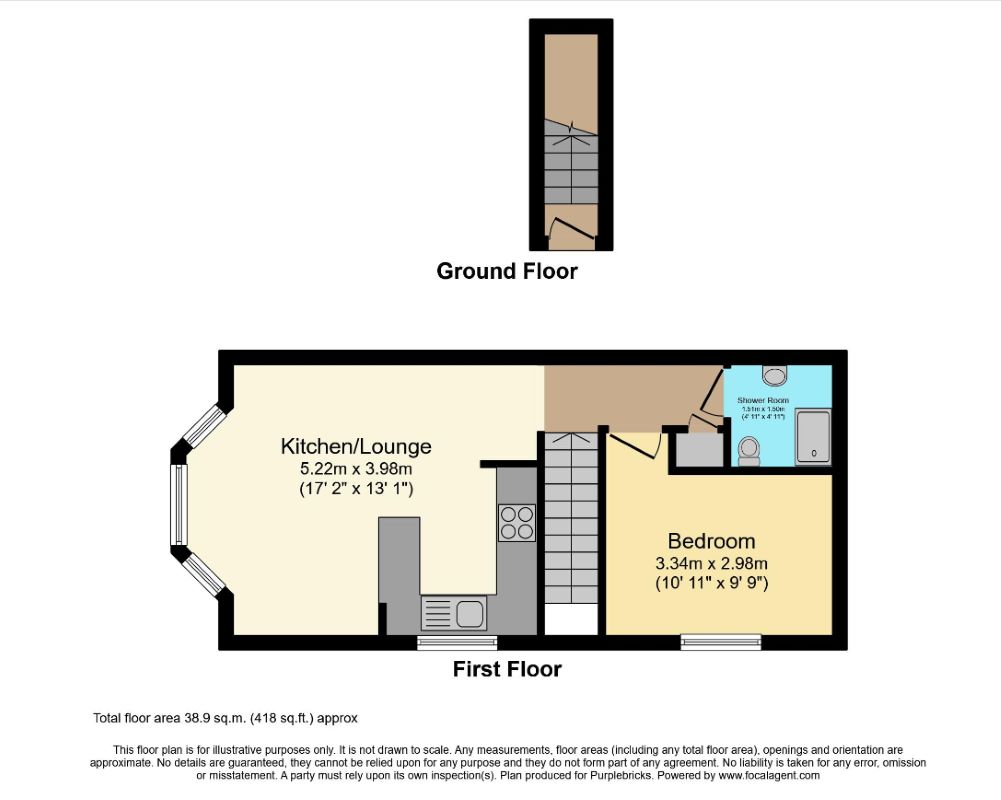
The Property A one bedroom first floor maisonette situated on popular Hayling Island with local shopping facilities available immediately outside and less then 1km from the beach. The property is well laid out and offers a private entrance, 17ft 2 kitchen/lounge, double bedroom and a shower room. There is also a gas fired central heating system and double glazed windows. Externally there is parking to the rear of the property. No onward chain. Lease Information Lease - Share of freehold included (Original lease was dated 25/12/1983 for 99 years which can be extended) Maintenance - As and when required. Property ownership information Tenure: Leasehold Council tax band: A

EPC Rating

Current 71 / 75 Potential

Opening Bid and Reserve Price

This Property is subject to an undisclosed Reserve Price which in general will not be 10% more than the Opening Bid. The Reserve Price and Opening Bid can be subject to change. The Online Auction terms and conditions apply.

Comments

This property is offered for sale via Online Auction which is a flexible and buyer friendly method of purchase. The purchaser will not be exchanging contracts on the fall of the virtual hammer, but will be given 56 working days in which to exchange and complete the transaction from the date the Draft Contract is issued by the sellers solicitor.

By giving a buyer time to exchange contracts on the property, normal residential finance can be arranged. The Buyer’s Premium secures the transaction and takes the property off the market. Fees paid to the Auctioneer reserve the property to the buyer during the Reservation Period and are paid in addition to the purchase price and are considered within calculations for Stamp Duty Land Tax. Further clarification on this must be sought from your legal representative.

The buyer will be required to give the Auctioneer authority to sign the Reservation Form on their behalf and to confirm acceptance of the Terms and Conditions prior to solicitors being instructed. Copies of the Reservation Form and all Terms and Conditions can be found in the Information Pack which can be downloaded from our website or requested from our Auctioneer.

If the vendor accepts an offer, the buyer will be required to make payment of a non-refundable reservation fee of £6,582 including VAT and a legal pack charge of £372 including VAT. This reserves the property for the buyer during the Reservation Period. Any additional fees and charges over and above this will be confirmed within the terms and conditions available on the website.

The Buyer's Premium is in addition to the final selling price and is considered within calculations for Stamp Duty Land Tax.

All buyers will be required to verify their identity and provide proof of how the purchase will be funded.

Buyer's Administration Charge

If the Buyer Information Pack has been produced and provided by GOTO Group any successful purchaser will be required to pay the fee specified above towards the cost of the preparation of the pack. These can then be used by your solicitor to progress the sale.

Buyer Fees

There are no other fees or charges payable to the Auctioneer however, there are other costs to consider such as:

  • You will need a Solicitor to act for you during the conveyancing and your Solicitor will advise you in relation to the associated costs. If you do not have a Solicitor, we can recommend the services of one of our Panel Solicitors who are all selected for their expertise in Auction Transactions. Please call the number below for more information.
  • Stamp Duty Land Tax (SDLT) is applicable if you buy a property or land over a certain price in England, Wales or Northern Ireland. Please click here for more information.

Energy Performance Certificate (EPCs)

An EPC is broadly like the labels provided with domestic appliances such as refrigerators and washing machines. Its purpose is to record how energy efficient a property is as a building. The certificate will provide a rating of the energy efficiency and carbon emissions of a building from A to G, where A is very efficient, and G is inefficient. The data required to allow the calculation of an EPC includes the age and construction of the building, its insulation and heating method. EPCs are produced using standard methods with standard assumptions about energy usage so that the energy efficiency of one building can easily be compared with another building of the same type. The Energy Performance of Buildings Directive (EPBD) requires that all buildings have an EPC when they are marketed for sale or for let, or when houses are newly built. EPCs are valid for 10 years, or until a newer EPC is prepared. During this period the EPC may be made available to buyers or new tenants.

Loading the bidding panel...

Office Contact

Auction Concierge Specialist
01844 355023

Agreement Documents

Additional Documents

Related Documents

Share