01844 355023    

5 Poplar Avenue Hutton Rudby, YARM, Cleveland, TS15 0EW

  • Conditional Online Auction Sale
  • Bedrooms: 4

GOTO auction offers for sale this 4 bedroom detached bungalow

Tenure

Freehold

Description

The Property
Neatly tucked away you will find this hidden gem that sits on generous plot within the sought after village of Hutton Rudby and with far reaching spectacular views across open farm land over to the Cleveland Hills.

The potential with this property is endless. Upon entering you will find driveway leading to its detached double garage with electric up and over door. The surrounding gardens are beautiful with ample patio seating areas, Astro turf and boarder shrubs. The property it's self briefly comprises, entrance porch, lounge, dining area, bathroom, shower room, four bedrooms and kitchen breakfast room.

The size, plot, potential, location and position of this family home is perfect and sure it will appeal for a variety of purchases.

This picturesque North Yorkshire village offers fantastic local amenities with Spar shop, post office and pubs. In addition, there is a doctors surgery, primary school and two churches. Leisure amenities include gardening club, tennis, cricket, bowls and a village hall with badminton club. Amazing countryside walks are immediately on your doorstep.

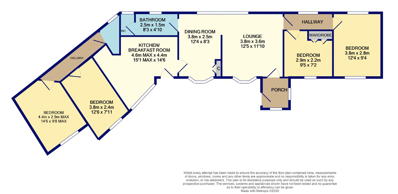
Porch
6'01" x 5'03"

Window to front and side. Door into lounge

Lounge
12'05" x 11'10"

Bay window to the front elevation, window to rear and dividing feature wall opening to diner and door into inner hall

Inner Hall
Window to the rear, door to two bedrooms

Bedroom
9'05" x 7'02" (to wardrobe)

Built in wardrobe and window to the front

Bedroom One
12'04" x 9'04"

Windows to front and rear, built in wardrobes and over head storage

Dining Area
12'04" x 8'03"

Bay window to the front, window to rear, doors to bathroom, kitchen and storage cupboard

Bathroom
8'03" x 4'10"

Window to the rear, white bath and wash basin. Door to separate w.c

W.C.
5'01" x 2'08"

Window to the rear and a white w.c

Kitchen/Breakfast
14'06" x 15'01" (max)

A quirky angled room due to previous extension. Packed with a range of wall and base units, electric cooker, grill and four ring hob, extractor, double doors to pantry/cloaks, windows to front and rear and door to rear inner hall way

Hall
Doors to two bedrooms and shower room

Shower Room
7'01" x 6'01" (max)

A modern suite comprising walk in shower cubicle housing electric shower, chrome heated towel rail, white w.c and wash hand basin with vanity storage under. Window to the rear

Bedroom Two
14'06" x 9'08"

Window to the front, built in wardrobe and over head storage

Bedroom Three
12'06" x 7'11

Window the front and built in wardrobe with over head storage

EPC Rating

Current 57/80 Potential

Opening Bid and Reserve Price

This Property is subject to an undisclosed Reserve Price which in general will not be 10% more than the Opening Bid. The Reserve Price and Opening Bid can be subject to change. The Online Auction terms and conditions apply.

Comments

This property is offered for sale via Online Auction which is a flexible and buyer friendly method of purchase. The purchaser will not be exchanging contracts on the fall of the virtual hammer, but will be given 56 working days in which to exchange and complete the transaction from the date the Draft Contract is issued by the sellers solicitor.

By giving a buyer time to exchange contracts on the property, normal residential finance can be arranged. The Buyer’s Premium secures the transaction and takes the property off the market. Fees paid to the Auctioneer reserve the property to the buyer during the Reservation Period and are paid in addition to the purchase price and are considered within calculations for Stamp Duty Land Tax. Further clarification on this must be sought from your legal representative.

The buyer will be required to give the Auctioneer authority to sign the Reservation Form on their behalf and to confirm acceptance of the Terms and Conditions prior to solicitors being instructed. Copies of the Reservation Form and all Terms and Conditions can be found in the Information Pack which can be downloaded from our website or requested from our Auctioneer.

If the vendor accepts an offer, the buyer will be required to make payment of a non-refundable reservation fee of £5,382 including VAT and a legal pack charge of £372 including VAT. This reserves the property for the buyer during the Reservation Period. Any additional fees and charges over and above this will be confirmed within the terms and conditions available on the website.

The Buyer's Premium is in addition to the final selling price and is considered within calculations for Stamp Duty Land Tax.

All buyers will be required to verify their identity and provide proof of how the purchase will be funded.

Buyer's Administration Charge

If the Buyer Information Pack has been produced and provided by GOTO Group any successful purchaser will be required to pay the fee specified above towards the cost of the preparation of the pack. These can then be used by your solicitor to progress the sale.

Buyer Fees

There are no other fees or charges payable to the Auctioneer however, there are other costs to consider such as:

  • You will need a Solicitor to act for you during the conveyancing and your Solicitor will advise you in relation to the associated costs. If you do not have a Solicitor, we can recommend the services of one of our Panel Solicitors who are all selected for their expertise in Auction Transactions. Please call the number below for more information.
  • Stamp Duty Land Tax (SDLT) is applicable if you buy a property or land over a certain price in England, Wales or Northern Ireland. Please click here for more information.

Energy Performance Certificate (EPCs)

An EPC is broadly like the labels provided with domestic appliances such as refrigerators and washing machines. Its purpose is to record how energy efficient a property is as a building. The certificate will provide a rating of the energy efficiency and carbon emissions of a building from A to G, where A is very efficient, and G is inefficient. The data required to allow the calculation of an EPC includes the age and construction of the building, its insulation and heating method. EPCs are produced using standard methods with standard assumptions about energy usage so that the energy efficiency of one building can easily be compared with another building of the same type. The Energy Performance of Buildings Directive (EPBD) requires that all buildings have an EPC when they are marketed for sale or for let, or when houses are newly built. EPCs are valid for 10 years, or until a newer EPC is prepared. During this period the EPC may be made available to buyers or new tenants.

Loading the bidding panel...

Office Contact

Auction Concierge Specialist
01844 355023

Agreement Documents

Additional Documents

Related Documents

Share