01844 355023    

Flat 40 Sendall Court, Winstanley Estate, London, SW11 2HE

  • Conditional Online Sale
  • Offers in Excess of : £340,000
  • Bedrooms: 2

GOTO GROUP PRESENTS THIS TWO-BEDROOM FLAT ON THE POPULAR WINSTANLEY ESTATE - SW11

Tenure

LEASEHOLD

Description

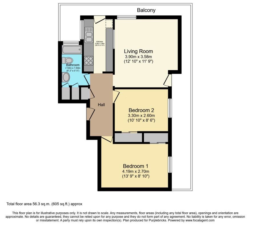
Set within Sendall Court on the popular Winstanley Estate, this bright two-bedroom flat offers approx. 56.3 sq m of well-planned living space with the added bonus of a private balcony. The living room measures 3.90m by 3.58m and provides a comfortable spot to relax, with direct access out to the balcony, bringing in plenty of natural light. Just off the living space, the kitchen is neatly arranged and positioned to keep day-to-day living practical and uncluttered.

Both bedrooms are well proportioned, with the main bedroom measuring 4.19m by 2.70m and offering good space for storage, while the second bedroom works well as a guest room, home office or nursery. The bathroom sits off the hallway and includes a full bath with overhead shower, keeping everything simple and functional.

Well located for local shops, green spaces and transport links from Clapham Junction, this flat offers a balanced layout and an easy-to-live-in feel, making it a solid option for first-time buyers, sharers or investors looking for a well-connected SW11 home.

Lease information: 125 years from 19 July 1999

Material information:
The information above has been provided by the vendor, agent and GOTO Group and may not be accurate. Please refer to the property’s Legal Pack. (You can download this once you have registered your interest against the property). This pack provides material information which will help you make an informed decision before proceeding. It may not yet include everything you need to know so please make sure you do your own due diligence as well.

EPC Rating

CURRENT 75 | POTENTIAL 75

Comments

This property is offered for sale via the Reservation Fee Service which is a flexible and buyer friendly method of purchase. The purchaser will be given 90 working days in which to complete the transaction from the date the Draft Contract is issued by the sellers solicitor.

By giving a buyer time to exchange contracts on the property, normal residential finance can be arranged. The Buyer’s Premium secures the transaction and takes the property off the market. Fees paid to the Merchant may be considered as part of the chargeable consideration for the property and be included in the calculation for stamp duty liability. Further clarification on this must be sought from your legal representative.

The buyer will be required to give the Merchant authority to sign the Reservation Form on their behalf and to confirm acceptance of the Terms and Conditions prior to solicitors being instructed. Copies of the Reservation Form and all Terms and Conditions can be found in the Information Pack which can be downloaded from our website or requested from our Merchant.

If the vendor accepts an offer, the buyer will be required to make payment of a non-refundable reservation fee of £4,680 including VAT and a legal pack charge of £396 including VAT. This reserves the property for the buyer during the Reservation Period. Any additional fees and charges over and above this will be confirmed within the terms and conditions available on the website.

The Buyer's Premium is in addition to the final selling price and is considered within calculations for Stamp Duty Land Tax.

All buyers will be required to verify their identity and provide proof of how the purchase will be funded.

Energy Performance Certificate (EPCs)

An EPC is broadly like the labels provided with domestic appliances such as refrigerators and washing machines. Its purpose is to record how energy efficient a property is as a building. The certificate will provide a rating of the energy efficiency and carbon emissions of a building from A to G, where A is very efficient, and G is inefficient. The data required to allow the calculation of an EPC includes the age and construction of the building, its insulation and heating method. EPCs are produced using standard methods with standard assumptions about energy usage so that the energy efficiency of one building can easily be compared with another building of the same type. The Energy Performance of Buildings Directive (EPBD) requires that all buildings have an EPC when they are marketed for sale or for let, or when houses are newly built. EPCs are valid for 10 years, or until a newer EPC is prepared. During this period the EPC may be made available to buyers or new tenants.

Loading the bidding panel...

Office Contact

Auction Concierge Specialist
01844 355023

Agreement Documents

Legal Documents

Log in to view legal documents

Additional Documents

Related Documents

Share