01844 355023    

53 Greenhouse Farm Road, Runcorn, Cheshire, WA7 6PP

  • Conditional Online Auction Sale
  • Bedrooms: 4

THE GOTO GROUP PRESENTS THIS FOUR BEDROOM DETACHED PROPERTY IN RUNCORN - WA7

Tenure

FREEHOLD

Description

The property situated at the edge of Runcorn’s Town Park, offering open fields, trails and woodlands is the ideal location for families to expand and grow. With excellent access to local amenities, schools, transport links, and green spaces, this property represents a fantastic opportunity to acquire a substantial family home in a sought-after and quiet area.

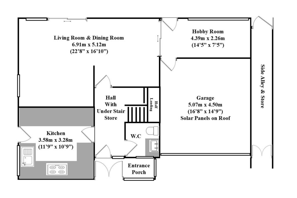
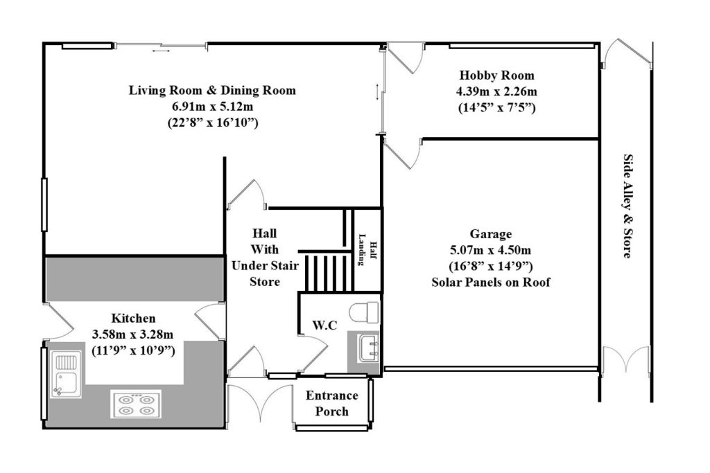
As you arrive at the home you are greeted by a large easy access driveway with small front garden. The double garage attached to the property has a remote entry powered roller door and tiled roof with fitted solar panels. Before entering the home, you can hang up your coat and leave your shoes in a secure enclosed porch. The spacious hallway has plenty of scope to redesign the open under stair storage area. The convenient downstairs W.C gives more freedom to a modern family and allows you to entertain guests without compromising your privacy upstairs.

The fitted kitchen offers ample storage and worktop space, with scope for modernisation to create a contemporary culinary hub. The external kitchen door leads out to the side of the garden, front garden access gate and a handy garden cold water tap. To the rear, the expansive living/dining room enjoys generous natural light from a side window and 3-panel patio window with sliding door (leading to the rear of the garden). There is also a 2-panel patio window with sliding door that leads to the rear hobby room and garage rear entry door.

Open space stairway with half landing leads to the first-floor main landing, from here, you can access the four well-proportioned bedrooms, offering flexibility for family living, home working, or guest accommodation. There is potential to convert the fourth bedroom into two ensuites for bedrooms 2 and 3, whilst modernising the generous family bathroom to complete the upstairs layout.

Book viewings online 24/7.

Outside
Externally, the home is positioned away from the public road in a 4-home private close, with driveway and small garden to the front, side access gate, surrounding garden to the side and rear, attached double garage and side alley rear garden access or secure storage room

Material information:
The information above has been provided by the vendor, agent and GOTO Group and may not be accurate. Please refer to the property’s Legal Pack. (You can download this once you have registered your interest against the property). This pack provides material information which will help you make an informed decision before proceeding. It may not yet include everything you need to know so please make sure you do your own due diligence as well.

EPC Rating

Current 66|Potential 74

Opening Bid and Reserve Price

This Property is subject to an undisclosed Reserve Price which in general will not be 10% more than the Opening Bid. The Reserve Price and Opening Bid can be subject to change. The Online Auction terms and conditions apply.

Comments

This property is offered for sale via Online Auction which is a flexible and buyer friendly method of purchase. The purchaser will not be exchanging contracts on the fall of the virtual hammer, but will be given 56 working days in which to exchange and complete the transaction from the date the Draft Contract is issued by the sellers solicitor.

By giving a buyer time to exchange contracts on the property, normal residential finance can be arranged. The Buyer’s Premium secures the transaction and takes the property off the market. Fees paid to the Auctioneer reserve the property to the buyer during the Reservation Period and are paid in addition to the purchase price and are considered within calculations for Stamp Duty Land Tax. Further clarification on this must be sought from your legal representative.

The buyer will be required to give the Auctioneer authority to sign the Reservation Form on their behalf and to confirm acceptance of the Terms and Conditions prior to solicitors being instructed. Copies of the Reservation Form and all Terms and Conditions can be found in the Information Pack which can be downloaded from our website or requested from our Auctioneer.

If the vendor accepts an offer, the buyer will be required to make payment of a non-refundable reservation fee of £8,856 including VAT and a legal pack charge of £396 including VAT. This reserves the property for the buyer during the Reservation Period. Any additional fees and charges over and above this will be confirmed within the terms and conditions available on the website.

The Buyer's Premium is in addition to the final selling price and is considered within calculations for Stamp Duty Land Tax.

All buyers will be required to verify their identity and provide proof of how the purchase will be funded.

Buyer's Administration Charge

If the Buyer Information Pack has been produced and provided by GOTO Group any successful purchaser will be required to pay the fee specified above towards the cost of the preparation of the pack. These can then be used by your solicitor to progress the sale.

Buyer Fees

There are no other fees or charges payable to the Auctioneer however, there are other costs to consider such as:

  • You will need a Solicitor to act for you during the conveyancing and your Solicitor will advise you in relation to the associated costs. If you do not have a Solicitor, we can recommend the services of one of our Panel Solicitors who are all selected for their expertise in Auction Transactions. Please call the number below for more information.
  • Stamp Duty Land Tax (SDLT) is applicable if you buy a property or land over a certain price in England, Wales or Northern Ireland. Please click here for more information.

Energy Performance Certificate (EPCs)

An EPC is broadly like the labels provided with domestic appliances such as refrigerators and washing machines. Its purpose is to record how energy efficient a property is as a building. The certificate will provide a rating of the energy efficiency and carbon emissions of a building from A to G, where A is very efficient, and G is inefficient. The data required to allow the calculation of an EPC includes the age and construction of the building, its insulation and heating method. EPCs are produced using standard methods with standard assumptions about energy usage so that the energy efficiency of one building can easily be compared with another building of the same type. The Energy Performance of Buildings Directive (EPBD) requires that all buildings have an EPC when they are marketed for sale or for let, or when houses are newly built. EPCs are valid for 10 years, or until a newer EPC is prepared. During this period the EPC may be made available to buyers or new tenants.

Loading the bidding panel...

Office Contact

Auction Concierge Specialist
01844 355023

Agreement Documents

Legal Documents

Log in to view legal documents

Additional Documents

Related Documents

Share