01844 355023    

Flat 8 Granville Court, 23 Granville Road, St. Albans, Hertfordshire, AL1 5BE

  • Conditional Online Auction Sale
  • Bedrooms: 1

GOTO GROUP PRESENTS THIS ONE-BEDROOM FLAT IN St. ALBANS, AL1

Tenure

LEASEHOLD

Description

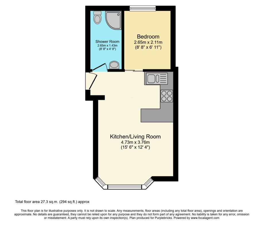
Charming one-bedroom, first-floor apartment ideally situated for commuters, just moments from St Albans’ mainline railway station which links to London St Pancras in around 30 minutes. This attractive period conversion offers comfortable, low-maintenance living with a separate entrance and well-presented accommodation. Accommodation features a cozy living area, a compact kitchen area, a bedroom area, and a bathroom. The property benefits from off-street parking, accessible to residents only and secured behind a barrier. Located in a vibrant city centre with an array of shopping, dining, and leisure facilities within easy reach, the home is also close to both Clarence Park and Verulamium Park and the many pubs and cosmopolitan eateries that St Albans has to offer. The property is being sold with no onward chain, adding to its appeal for first-time buyers, investors, or those seeking a convenient lock-up-and-leave lifestyle. Key details: - first floor of a period conversion - Separate entrance - Living area, kitchen area, bedroom area, and bathroom - secure parking for one vehicle - No onward chain. Costs: - Service charge: £1,112 per annum - Ground rent: £150 per annum For commuters seeking a well-connected, characterful home with easy access to London, this property offers an excellent combination of location, lifestyle, and potential.

Property ownership information

Ground rent review period: No review period

Service charge review period: No review period

Leasehold Information: 99 years from 25 December 1987 which may affect the ability to purchase the property with a mortgage or lending.

Material information:
The information above has been provided by the vendor, agent and GOTO Group and may not be accurate. Please refer to the property’s Legal Pack. (You can download this once you have registered your interest against the property). This pack provides material information which will help you make an informed decision before proceeding. It may not yet include everything you need to know so please make sure you do your own due diligence as well.

EPC Rating

Current 57|Potential 81

Opening Bid and Reserve Price

This Property is subject to an undisclosed Reserve Price which in general will not be 10% more than the Opening Bid. The Reserve Price and Opening Bid can be subject to change. The Online Auction terms and conditions apply.

Comments

This property is offered for sale via Online Auction which is a flexible and buyer friendly method of purchase. The purchaser will not be exchanging contracts on the fall of the virtual hammer, but will be given 56 working days in which to exchange and complete the transaction from the date the Draft Contract is issued by the sellers solicitor.

By giving a buyer time to exchange contracts on the property, normal residential finance can be arranged. The Buyer’s Premium secures the transaction and takes the property off the market. Fees paid to the Auctioneer reserve the property to the buyer during the Reservation Period and are paid in addition to the purchase price and are considered within calculations for Stamp Duty Land Tax. Further clarification on this must be sought from your legal representative.

The buyer will be required to give the Auctioneer authority to sign the Reservation Form on their behalf and to confirm acceptance of the Terms and Conditions prior to solicitors being instructed. Copies of the Reservation Form and all Terms and Conditions can be found in the Information Pack which can be downloaded from our website or requested from our Auctioneer.

If the vendor accepts an offer, the buyer will be required to make payment of a non-refundable reservation fee of £9,072 including VAT and a legal pack charge of £396 including VAT. This reserves the property for the buyer during the Reservation Period. Any additional fees and charges over and above this will be confirmed within the terms and conditions available on the website.

The Buyer's Premium is in addition to the final selling price and is considered within calculations for Stamp Duty Land Tax.

All buyers will be required to verify their identity and provide proof of how the purchase will be funded.

Buyer's Administration Charge

If the Buyer Information Pack has been produced and provided by GOTO Group any successful purchaser will be required to pay the fee specified above towards the cost of the preparation of the pack. These can then be used by your solicitor to progress the sale.

Buyer Fees

There are no other fees or charges payable to the Auctioneer however, there are other costs to consider such as:

  • You will need a Solicitor to act for you during the conveyancing and your Solicitor will advise you in relation to the associated costs. If you do not have a Solicitor, we can recommend the services of one of our Panel Solicitors who are all selected for their expertise in Auction Transactions. Please call the number below for more information.
  • Stamp Duty Land Tax (SDLT) is applicable if you buy a property or land over a certain price in England, Wales or Northern Ireland. Please click here for more information.

Energy Performance Certificate (EPCs)

An EPC is broadly like the labels provided with domestic appliances such as refrigerators and washing machines. Its purpose is to record how energy efficient a property is as a building. The certificate will provide a rating of the energy efficiency and carbon emissions of a building from A to G, where A is very efficient, and G is inefficient. The data required to allow the calculation of an EPC includes the age and construction of the building, its insulation and heating method. EPCs are produced using standard methods with standard assumptions about energy usage so that the energy efficiency of one building can easily be compared with another building of the same type. The Energy Performance of Buildings Directive (EPBD) requires that all buildings have an EPC when they are marketed for sale or for let, or when houses are newly built. EPCs are valid for 10 years, or until a newer EPC is prepared. During this period the EPC may be made available to buyers or new tenants.

Loading the bidding panel...

Office Contact

Auction Concierge Specialist
01844 355023

Agreement Documents

Legal Documents

Log in to view legal documents

Additional Documents

Related Documents

Share