01844 355023    

8 Highfield Drive Mossley, Ashton-under-Lyne, Lancashire, OL5 0DW

  • Conditional Online Sale
  • Offers in Excess of : £320,000
  • Bedrooms: 3

GOTO GROUP PRESENTS THIS THREE BEDROOM DETACHED FAMILY HOME IN ASHTON-UNDER-LYNE - OL5

Tenure

LEASEHOLD

Description

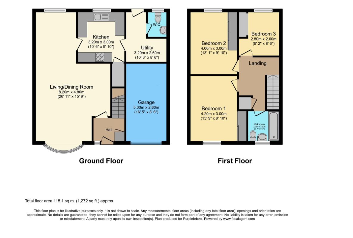
Welcome to Highfield Drive, Mossley, Lancashire, OL5 0DW- beautiful views, and excellent access to local amenities. Set within walking distance of Mossley Train Station, the town centre, and within the catchment area for Mossley Hollins High School, this property is ideal for families and commuters alike.

The home opens into a welcoming entrance hall, leading into a spacious open-plan dual aspect living and dining room. Flooded with natural light from front and rear windows, this versatile space is perfect for both entertaining and everyday family life. The adjacent fitted kitchen offers ample storage and workspace, with a separate utility room providing additional convenience and access to the rear garden. A ground floor W.C. completes the ground floor layout.

To the first floor, the property features three generously sized bedrooms, all benefiting from fitted wardrobes, making great use of space and providing excellent storage. The accommodation is served by a well-appointed family bathroom with modern fittings.

Externally, the property boasts a driveway leading to an attached garage, offering both off-road parking and storage. The front garden adds to the home’s kerb appeal, while the rear garden provides a private outdoor space perfect for relaxation or entertaining—complete with stunning views across the surrounding countryside.

Positioned in a quiet and desirable part of Mossley, this home offers the best of both worlds: a peaceful residential setting with easy access to local schools, shops, country walks, and excellent transport links into Manchester and beyond via Mossley Station.

Whether you're a growing family or a buyer looking to settle in a well-connected and scenic location, this charming home is not to be missed. Early viewing is highly recommended to appreciate the space, setting, and lifestyle on offer.

Property ownership information

Ground rent review period: No review period

Service charge review period: No review period

Leasehold Information: 999 years from 24 March 1975

Lease end date: 24/03/2974

Material information:
The information above has been provided by the vendor, agent and GOTO Group and may not be accurate. Please refer to the property’s Legal Pack. (You can download this once you have registered your interest against the property). This pack provides material information which will help you make an informed decision before proceeding. It may not yet include everything you need to know so please make sure you do your own due diligence as well.

EPC Rating

Current 64|Potential 75

Comments

This property is offered for sale via the Reservation Fee Service which is a flexible and buyer friendly method of purchase. The purchaser will be given 90 working days in which to complete the transaction from the date the Draft Contract is issued by the sellers solicitor.

By giving a buyer time to exchange contracts on the property, normal residential finance can be arranged. The Buyer’s Premium secures the transaction and takes the property off the market. Fees paid to the Merchant may be considered as part of the chargeable consideration for the property and be included in the calculation for stamp duty liability. Further clarification on this must be sought from your legal representative.

The buyer will be required to give the Merchant authority to sign the Reservation Form on their behalf and to confirm acceptance of the Terms and Conditions prior to solicitors being instructed. Copies of the Reservation Form and all Terms and Conditions can be found in the Information Pack which can be downloaded from our website or requested from our Merchant.

If the vendor accepts an offer, the buyer will be required to make payment of a non-refundable reservation fee of £4,440 including VAT and a legal pack charge of £396 including VAT. This reserves the property for the buyer during the Reservation Period. Any additional fees and charges over and above this will be confirmed within the terms and conditions available on the website.

The Buyer's Premium is in addition to the final selling price and is considered within calculations for Stamp Duty Land Tax.

All buyers will be required to verify their identity and provide proof of how the purchase will be funded.

Energy Performance Certificate (EPCs)

An EPC is broadly like the labels provided with domestic appliances such as refrigerators and washing machines. Its purpose is to record how energy efficient a property is as a building. The certificate will provide a rating of the energy efficiency and carbon emissions of a building from A to G, where A is very efficient, and G is inefficient. The data required to allow the calculation of an EPC includes the age and construction of the building, its insulation and heating method. EPCs are produced using standard methods with standard assumptions about energy usage so that the energy efficiency of one building can easily be compared with another building of the same type. The Energy Performance of Buildings Directive (EPBD) requires that all buildings have an EPC when they are marketed for sale or for let, or when houses are newly built. EPCs are valid for 10 years, or until a newer EPC is prepared. During this period the EPC may be made available to buyers or new tenants.

Loading the bidding panel...

Office Contact

Auction Concierge Specialist
01844 355023

Agreement Documents

Legal Documents

Log in to view legal documents

Additional Documents

Related Documents

Share