01844 355023    

Plas Darien Lon Isallt, Trearddur Bay, Holyhead, Anglesey, LL65 2UP

  • Conditional Online Auction Sale
  • Bedrooms: 3

THE GOTO GROUP PRESENTS A THREE BEDROOM APARTMENT IN LON ISALLT - LL65

Tenure

LEASEHOLD

Description

READY > SET > PLACE YOUR BIDS TODAY!!!

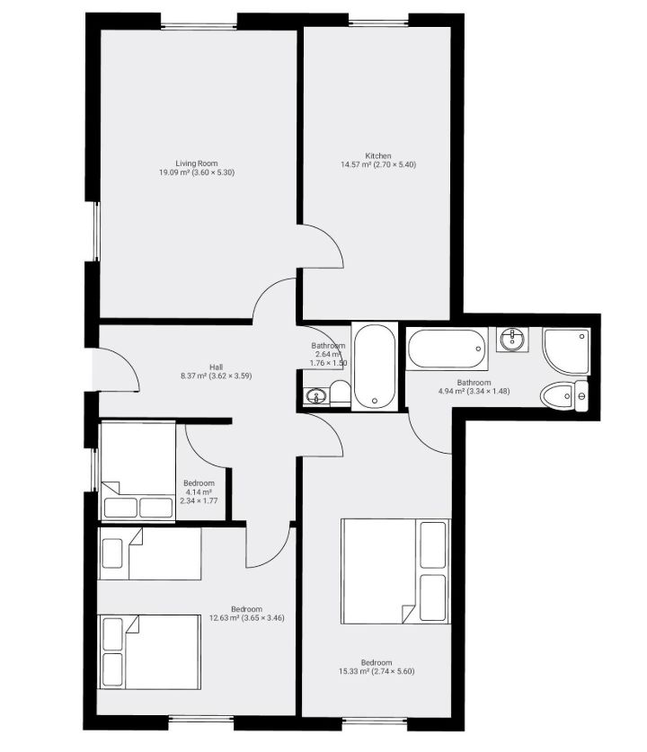
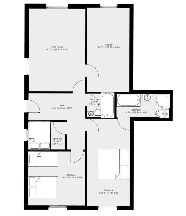
Welcome to this tastefully refurbished, three-bedroom apartment, set in an elevated position with views over the Irish Sea and the Llyn Peninsula. Nestled just off the main road, this property offers both tranquillity and easy access to the heart of Trearddur Bay.

This leasehold apartment comes with a 19th share of the freehold company, and boasts a spacious, light-filled reception room, two full bathrooms, and double-glazed windows, creating a cosy and inviting atmosphere. Communal gas heating keeps the property warm and comfortable, with allocated parking for two vehicles adding to its convenience.

What truly sets this property apart are the panoramic views of the Irish Sea, Snowdonia, Barnsey Island, and Holyhead Mountain. Residents benefit from exclusive access to communal gardens overlooking the sea and a large outdoor swimming pool creating a peaceful and relaxing environment. Close to Trearddur’s vibrant restaurants, bars, beautiful beaches, and secluded coves, the location combines coastal beauty with easy access to local amenities.

Perfectly positioned near Trearddur Bay Beach, Porth Y Post, and for Holyhead Golf Club, this apartment offers endless recreational options. Its minimalist decor provides a tasteful blank canvas ready for personalisation, capturing the essence of refined coastal living at its best.

Service charge includes: Communal heating, water rates, maintenance of ground, buildings insurance.

Property ownership information

Leasehold info: 999 years from the 1 September 2004

Ground rent review period: No review period

Service charge review period: Every 1 year

Lease end date: 27/08/3003

IF YOU ARE READY TO VIEW - MAKE YOUR REQUEST TODAY!!!

Material information:
The information above has been provided by the vendor, agent and GOTO Group and may not be accurate. Please refer to the property’s Legal Pack. (You can download this once you have registered your interest against the property). This pack provides material information which will help you make an informed decision before proceeding. It may not yet include everything you need to know so please make sure you do your own due diligence as well

EPC Rating

Current 73|Potential 77

Opening Bid and Reserve Price

This Property is subject to an undisclosed Reserve Price which in general will not be 10% more than the Opening Bid. The Reserve Price and Opening Bid can be subject to change. The Online Auction terms and conditions apply.

Comments

This property is offered for sale via Online Auction which is a flexible and buyer friendly method of purchase. The purchaser will not be exchanging contracts on the fall of the virtual hammer, but will be given 56 working days in which to exchange and complete the transaction from the date the Draft Contract is issued by the sellers solicitor.

By giving a buyer time to exchange contracts on the property, normal residential finance can be arranged. The Buyer’s Premium secures the transaction and takes the property off the market. Fees paid to the Auctioneer reserve the property to the buyer during the Reservation Period and are paid in addition to the purchase price and are considered within calculations for Stamp Duty Land Tax. Further clarification on this must be sought from your legal representative.

The buyer will be required to give the Auctioneer authority to sign the Reservation Form on their behalf and to confirm acceptance of the Terms and Conditions prior to solicitors being instructed. Copies of the Reservation Form and all Terms and Conditions can be found in the Information Pack which can be downloaded from our website or requested from our Auctioneer.

If the vendor accepts an offer, the buyer will be required to make payment of a non-refundable reservation fee of £7,920 including VAT and a legal pack charge of £396 including VAT. This reserves the property for the buyer during the Reservation Period. Any additional fees and charges over and above this will be confirmed within the terms and conditions available on the website.

The Buyer's Premium is in addition to the final selling price and is considered within calculations for Stamp Duty Land Tax.

All buyers will be required to verify their identity and provide proof of how the purchase will be funded.

Buyer's Administration Charge

If the Buyer Information Pack has been produced and provided by GOTO Group any successful purchaser will be required to pay the fee specified above towards the cost of the preparation of the pack. These can then be used by your solicitor to progress the sale.

Buyer Fees

There are no other fees or charges payable to the Auctioneer however, there are other costs to consider such as:

  • You will need a Solicitor to act for you during the conveyancing and your Solicitor will advise you in relation to the associated costs. If you do not have a Solicitor, we can recommend the services of one of our Panel Solicitors who are all selected for their expertise in Auction Transactions. Please call the number below for more information.
  • Stamp Duty Land Tax (SDLT) is applicable if you buy a property or land over a certain price in England, Wales or Northern Ireland. Please click here for more information.

Energy Performance Certificate (EPCs)

An EPC is broadly like the labels provided with domestic appliances such as refrigerators and washing machines. Its purpose is to record how energy efficient a property is as a building. The certificate will provide a rating of the energy efficiency and carbon emissions of a building from A to G, where A is very efficient, and G is inefficient. The data required to allow the calculation of an EPC includes the age and construction of the building, its insulation and heating method. EPCs are produced using standard methods with standard assumptions about energy usage so that the energy efficiency of one building can easily be compared with another building of the same type. The Energy Performance of Buildings Directive (EPBD) requires that all buildings have an EPC when they are marketed for sale or for let, or when houses are newly built. EPCs are valid for 10 years, or until a newer EPC is prepared. During this period the EPC may be made available to buyers or new tenants.

Loading the bidding panel...

Office Contact

Auction Concierge Specialist
01844 355023

Agreement Documents

Legal Documents

Log in to view legal documents

Additional Documents

Related Documents

Share