FREEHOLD
Land with Planning Permission for Dormer Bungalow
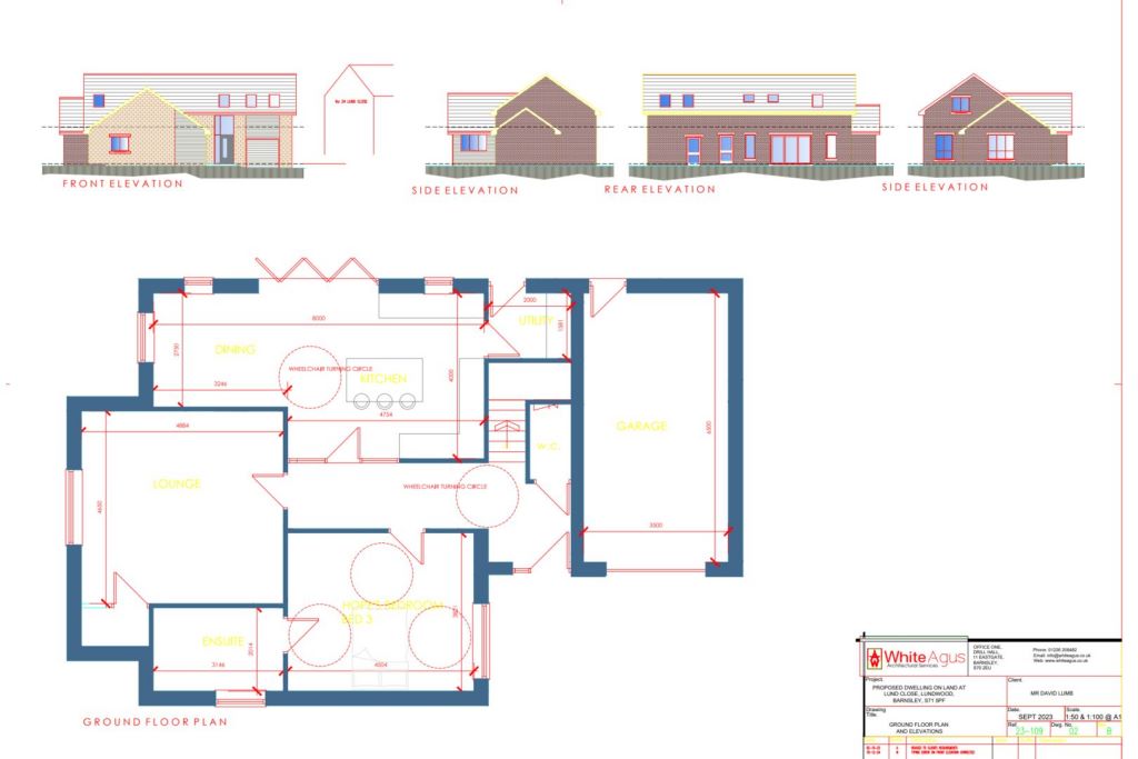
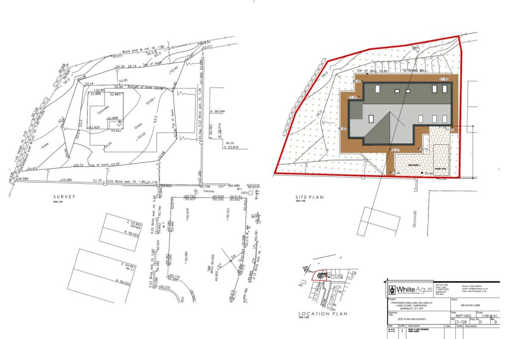
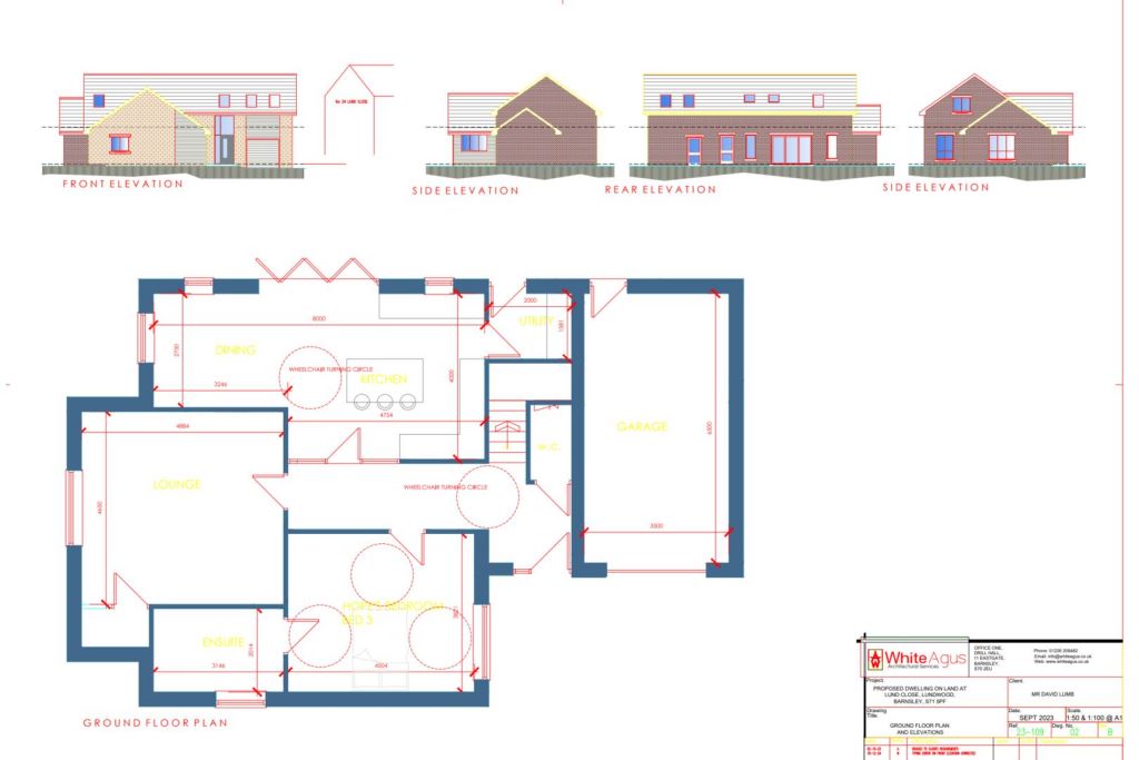
A fantastic opportunity to acquire a plot of land with full planning permission granted for a substantial dormer bungalow. Situated in a desirable location, this site offers the chance to build a modern, bespoke home tailored to your own needs and lifestyle.
The approved plans provide for a spacious and well-designed layout, with modern living on the ground floor and three large bedrooms and a family bathroom upstairs. One of the upstairs bedrooms could be divided to create a fourth bedroom if desired, offering great flexibility for growing families or home working.
This is not a typical downsizer’s property — the proposed bungalow is generously proportioned, both in footprint and layout, making it ideal for those seeking the comfort of single-level living with the space of a large family home. We recommend reviewing the full plans and comparing to neighbouring homes and bungalows to fully appreciate the size and scope of this exceptional opportunity.
Located close to local amenities, schools, and excellent transport links, the site provides both convenience and the potential for a truly stunning new home.
Opportunities like this are rare – whether you’re an individual looking to create your dream property or a developer seeking your next project, this land with planning permission is not to be missed.
Material information:
The information above has been provided by the vendor, agent and GOTO Group and may not be accurate. Please refer to the property’s Legal Pack. (You can download this once you have registered your interest against the property). This pack provides material information which will help you make an informed decision before proceeding. It may not yet include everything you need to know so please make sure you do your own due diligence as well.
This Property is subject to an undisclosed Reserve Price which in general will not be 10% more than the Opening Bid. The Reserve Price and Opening Bid can be subject to change. The Online Auction terms and conditions apply.
This property is offered for sale via Online Auction which is a flexible and buyer friendly method of purchase. The purchaser will be required to exchange contracts on the fall of the virtual hammer, but will be given 28 days in which to complete the transaction.
The Buyer’s Premium secures the transaction and takes the property off the market. Fees paid to the Auctioneer may be considered as part of the chargeable consideration for the property and be included in the calculation for stamp duty liability. Further clarification on this must be sought from your legal representative.
The buyer will be required to give the Auctioneers authority to sign the Contract for exchange on their behalf and to confirm acceptance of the Terms and Conditions prior to solicitors being instructed. Copies of all Terms and Conditions can be found in the Information Pack which can be downloaded from our website or requested from our Auction Department.
Upon close of a successful auction, or if the vendor accepts an offer during the auction, the buyer will be required to make payment of a non-refundable Buyer’s Premium of £6,600 including VAT, plus an administration charge of £396 including VAT, a total of £6,996. 10% of the purchase price will need to be paid in way of a part payment deposit which contributes towards your purchase price. Any additional fees and charges over and above this will be confirmed within the terms and conditions available on the auction website.
The Buyer's Premium and administration charge are in addition to the final negotiated selling price.
All buyers will be required to verify their identity and provide proof of how the purchase will be funded.
An EPC is broadly like the labels provided with domestic appliances such as refrigerators and washing machines. Its purpose is to record how energy efficient a property is as a building. The certificate will provide a rating of the energy efficiency and carbon emissions of a building from A to G, where A is very efficient, and G is inefficient. The data required to allow the calculation of an EPC includes the age and construction of the building, its insulation and heating method. EPCs are produced using standard methods with standard assumptions about energy usage so that the energy efficiency of one building can easily be compared with another building of the same type. The Energy Performance of Buildings Directive (EPBD) requires that all buildings have an EPC when they are marketed for sale or for let, or when houses are newly built. EPCs are valid for 10 years, or until a newer EPC is prepared. During this period the EPC may be made available to buyers or new tenants.
By setting a proxy bid, the system will automatically bid on your behalf to maintain your position as the highest bidder, up to your proxy bid amount. If you are outbid, you will be notified via email so you can opt to increase your bid if you so choose.
If two of more users place identical bids, the bid that was placed first takes precedence, and this includes proxy bids.
Another bidder placed an automatic proxy bid greater or equal to the bid you have just placed. You will need to bid again to stand a chance of winning.