FREEHOLD
Stunning 2-Bedroom Lakeside Lodge – Green Meadows Country Park, Carlisle, CA6 4EA
Set in the tranquil surroundings of the picturesque Green Meadows Country Park, this beautifully presented two-bedroom lodge offers the perfect retreat, whether as a peaceful full-time residence, a luxurious holiday escape, or a lucrative investment opportunity. Situated in a prime position overlooking the lake, Lodge 50 boasts uninterrupted views, stylish interiors, and an exceptional outdoor space ideal for enjoying the calm and beauty of the Cumbrian countryside.
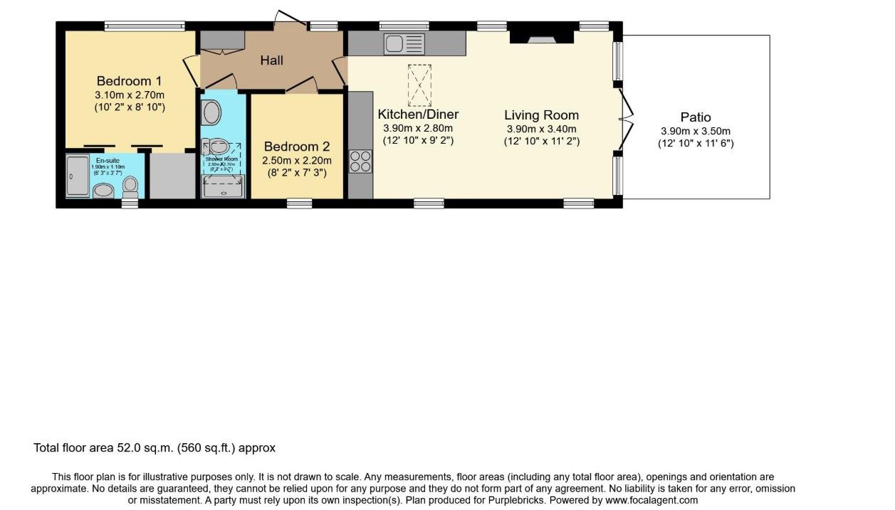
Accommodation:
The lodge opens into a welcoming entrance hallway with practical storage and a light, airy feel throughout. The heart of the home is the open-plan kitchen/living/dining area, with large windows and French doors that frame the serene lake views, and offer access to the decking area complete with sunken hot tub. The space is thoughtfully laid out to accommodate both a cosy lounge area and a dining space for entertaining.
The kitchen is fully equipped with sleek cabinetry, integrated appliances including oven, hob, dishwasher, fridge/freezer, and microwave, plus plenty of worktop space — perfect for home cooking or casual dining.
The principle bedroom is generously proportioned and features built-in wardrobes and a private en-suite shower room. The second bedroom, also a good-sized twin, is ideal for guests or family and is serviced by a modern shower room with modern black fittings and finishes.
Location
Green Meadows Country Park is a gated, beautifully maintained development with its own secure and private dog walking field located just north of Carlisle, close to the Lake District and the Scottish Borders. The park provides a peaceful, semi-rural setting with easy access to the M6 motorway and local amenities just a short drive away.
This area is highly regarded for its natural beauty, walking and cycling routes, and access to nearby attractions, including the Solway Coast, Hadrian’s Wall, and the Lake District National Park.
Material information:
The information above has been provided by the vendor, agent and GOTO Group and may not be accurate. Please refer to the property’s Legal Pack. (You can download this once you have registered your interest against the property). This pack provides material information which will help you make an informed decision before proceeding. It may not yet include everything you need to know so please make sure you do your own due diligence as well.
TBC
This property is offered for sale via the Reservation Fee Service which is a flexible and buyer friendly method of purchase. The purchaser will be given 90 working days in which to complete the transaction from the date the Draft Contract is issued by the sellers solicitor.
By giving a buyer time to exchange contracts on the property, normal residential finance can be arranged. The Buyer’s Premium secures the transaction and takes the property off the market. Fees paid to the Merchant may be considered as part of the chargeable consideration for the property and be included in the calculation for stamp duty liability. Further clarification on this must be sought from your legal representative.
The buyer will be required to give the Merchant authority to sign the Reservation Form on their behalf and to confirm acceptance of the Terms and Conditions prior to solicitors being instructed. Copies of the Reservation Form and all Terms and Conditions can be found in the Information Pack which can be downloaded from our website or requested from our Merchant.
If the vendor accepts an offer, the buyer will be required to make payment of a non-refundable reservation fee of £2,100 including VAT and a legal pack charge of £396 including VAT. This reserves the property for the buyer during the Reservation Period. Any additional fees and charges over and above this will be confirmed within the terms and conditions available on the website.
The Buyer's Premium is in addition to the final selling price and is considered within calculations for Stamp Duty Land Tax.
All buyers will be required to verify their identity and provide proof of how the purchase will be funded.
An EPC is broadly like the labels provided with domestic appliances such as refrigerators and washing machines. Its purpose is to record how energy efficient a property is as a building. The certificate will provide a rating of the energy efficiency and carbon emissions of a building from A to G, where A is very efficient, and G is inefficient. The data required to allow the calculation of an EPC includes the age and construction of the building, its insulation and heating method. EPCs are produced using standard methods with standard assumptions about energy usage so that the energy efficiency of one building can easily be compared with another building of the same type. The Energy Performance of Buildings Directive (EPBD) requires that all buildings have an EPC when they are marketed for sale or for let, or when houses are newly built. EPCs are valid for 10 years, or until a newer EPC is prepared. During this period the EPC may be made available to buyers or new tenants.
By setting a proxy bid, the system will automatically bid on your behalf to maintain your position as the highest bidder, up to your proxy bid amount. If you are outbid, you will be notified via email so you can opt to increase your bid if you so choose.
If two of more users place identical bids, the bid that was placed first takes precedence, and this includes proxy bids.
Another bidder placed an automatic proxy bid greater or equal to the bid you have just placed. You will need to bid again to stand a chance of winning.