01844 355023    

Flat 75 Burgess House, 42 Sanvey Gate, Leicester, Leicestershire, LE1 4BR

  • Conditional Online Auction Sale
  • Bedrooms: 2

THE GOTO GROUP PRESENTS THIS TWO BEDROOM FLAT IN LEICESTER - LE1

Tenure

LEASEHOLD

Description

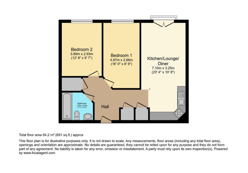
Beautiful 2-Bedroom Apartment Near Leicester Town Centre on Sanvey Gate

Located just outside Leicester Town Centre on the popular Sanvey Gate, this modern and stylish 2-bedroom apartment offers an ideal home for first-time buyers, professionals, or a growing family. Its prime location provides easy access to highly regarded schools, shops, parks, and excellent transport links.

Key Features:
2 Spacious Bedrooms: Two generously sized bedrooms, ideal for comfortable living or accommodating guests.

Modern Bathroom: A sleek and well-appointed bathroom for all your daily needs.

Open-Plan Lounge/Diner/Kitchen: A bright and airy living area with a contemporary kitchen, perfect for entertaining or family time.

Hallway: A welcoming entrance hall providing access to all rooms and additional storage space.

Allocated Parking: The property comes with an allocated parking space for added convenience.

Double Glazing & electric exhaust air heat pump system: Enjoy full double glazing and water-fed underfloor heating throughout, ensuring year-round comfort and energy efficiency.

Leasehold Property: A leasehold property offering a well-maintained, hassle-free living environment.

Council Tax Band C: Positioned in Band C, reflecting its location and size.

Location Highlights:
Prime Location: Just off St Margaret's Way, the property is conveniently located for easy access to Leicester Town Centre.
Local Amenities: Within close reach of highly rated schools, shops, and green spaces, making it perfect for families and professionals.
Excellent Transport Links: Close to public transport options and major roadways for easy commuting.
This charming apartment is an excellent opportunity to secure a modern home in a fantastic location. With its well-thought-out layout, modern amenities, and proximity to essential services, this property won't be available for long!

Arrange a viewing today and discover your next home on Sanvey Gate.

Property ownership information

Ground rent review period: No review period

Service charge review period: Every 1 year

Lease Information 99 years from 1 January 2005 which may affect the ability to purchase the property with a mortgage or lending

Material Information.
The information above has been provided by the vendor, agent and GOTO Group and may not be accurate. Please refer to the property’s Legal Pack. (You can download this once you have registered your interest against the property). This pack provides material information which will help you make an informed decision before proceeding. It may not yet include everything you need to know so please make sure you do your own due diligence as well.

EPC Rating

Current 77|Potential 77

Opening Bid and Reserve Price

This Property is subject to an undisclosed Reserve Price which in general will not be 10% more than the Opening Bid. The Reserve Price and Opening Bid can be subject to change. The Online Auction terms and conditions apply.

Comments

This property is offered for sale via Online Auction which is a flexible and buyer friendly method of purchase. The purchaser will not be exchanging contracts on the fall of the virtual hammer, but will be given 56 working days in which to exchange and complete the transaction from the date the Draft Contract is issued by the sellers solicitor.

By giving a buyer time to exchange contracts on the property, normal residential finance can be arranged. The Buyer’s Premium secures the transaction and takes the property off the market. Fees paid to the Auctioneer reserve the property to the buyer during the Reservation Period and are paid in addition to the purchase price and are considered within calculations for Stamp Duty Land Tax. Further clarification on this must be sought from your legal representative.

The buyer will be required to give the Auctioneer authority to sign the Reservation Form on their behalf and to confirm acceptance of the Terms and Conditions prior to solicitors being instructed. Copies of the Reservation Form and all Terms and Conditions can be found in the Information Pack which can be downloaded from our website or requested from our Auctioneer.

If the vendor accepts an offer, the buyer will be required to make payment of a non-refundable reservation fee of £6,600 including VAT and a legal pack charge of £396 including VAT. This reserves the property for the buyer during the Reservation Period. Any additional fees and charges over and above this will be confirmed within the terms and conditions available on the website.

The Buyer's Premium is in addition to the final selling price and is considered within calculations for Stamp Duty Land Tax.

All buyers will be required to verify their identity and provide proof of how the purchase will be funded.

Buyer's Administration Charge

If the Buyer Information Pack has been produced and provided by GOTO Group any successful purchaser will be required to pay the fee specified above towards the cost of the preparation of the pack. These can then be used by your solicitor to progress the sale.

Buyer Fees

There are no other fees or charges payable to the Auctioneer however, there are other costs to consider such as:

  • You will need a Solicitor to act for you during the conveyancing and your Solicitor will advise you in relation to the associated costs. If you do not have a Solicitor, we can recommend the services of one of our Panel Solicitors who are all selected for their expertise in Auction Transactions. Please call the number below for more information.
  • Stamp Duty Land Tax (SDLT) is applicable if you buy a property or land over a certain price in England, Wales or Northern Ireland. Please click here for more information.

Energy Performance Certificate (EPCs)

An EPC is broadly like the labels provided with domestic appliances such as refrigerators and washing machines. Its purpose is to record how energy efficient a property is as a building. The certificate will provide a rating of the energy efficiency and carbon emissions of a building from A to G, where A is very efficient, and G is inefficient. The data required to allow the calculation of an EPC includes the age and construction of the building, its insulation and heating method. EPCs are produced using standard methods with standard assumptions about energy usage so that the energy efficiency of one building can easily be compared with another building of the same type. The Energy Performance of Buildings Directive (EPBD) requires that all buildings have an EPC when they are marketed for sale or for let, or when houses are newly built. EPCs are valid for 10 years, or until a newer EPC is prepared. During this period the EPC may be made available to buyers or new tenants.

Loading the bidding panel...

Office Contact

Auction Concierge Specialist
01844 355023

Agreement Documents

Additional Documents

Related Documents

Share