01844 355023    

15 Acklam Gardens Wootton Hall, Wootton Wawen, Henley-in-Arden, West Midlands, B95 6EH

  • Conditional Online Auction Sale
  • Bedrooms: 2

GOTO PRESENTS THIS 2 BEDROOM PARK HOME IN HENLEY-IN-ARDEN B95

Tenure

freehold

Description

There is an age restriction on this site. One owner has to be aged 55 or over. The current monthly site charge is £161. The fee is reviewed every July. Rates are Band "A".

According to the Mobile Home Act 2013, park homes are neither freehold nor leasehold. That's because all you are buying is the static caravan itself. The land remains the property of the park owner at all times.

A spacious two bedroom, two shower room Park Home enjoying a superb setting along a delightful cul- de- sac withing the beautiful Wootton Hall development.
Great plot with both a paved sit out garden and also a further wide side space having covered car port offering ample parking.

Wootton Hall is a large stately home dating back to the late 1600s, giving residents an impressive setting within the picturesque countryside surrounding the park.

Henley-in-Arden is just a few short miles away, offering a selection of shops and facilities including banks, supermarkets, healthcare, churches, and a traditional town market.

Reception Hall
L shaped entrance with access to all rooms

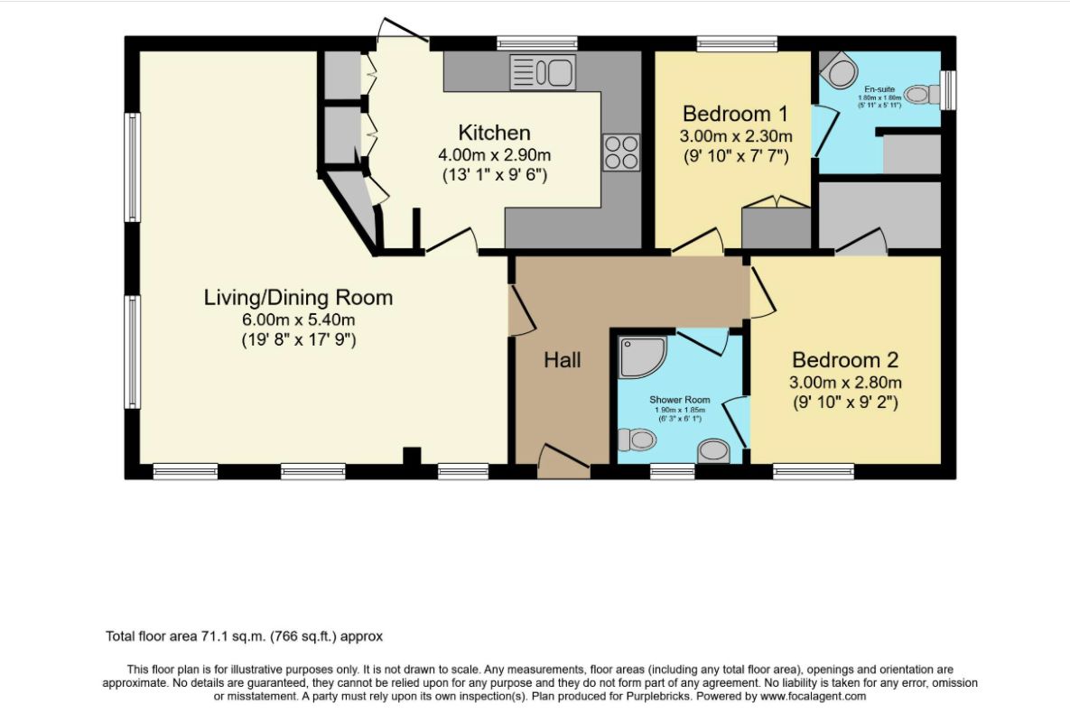
Living / Dining Room
6.00m x 5.50m large open plan living / dining room with fireplace and lots of space for sofas and table and chairs.

Kitchen
4.00m x 2,90m modern range of base and wall units offering lots of storage space with further space for appliances.

Bedroom One
3.00m x 2.30m

En-suite One
shower area, wash basin and w,c

Bedroom Two
3.00m x 2.80m

En-suite Two
shower enclosure,wash basin and w.c

Parking
Paved driveway tot he side along with covered car port area

General Information
There is an age restriction on this site. One owner has to be aged 55 or over. The current monthly site charge is £161.
The fee is reviewed every July. Rates are Band "A".

Material Information.
The information above has Material information:
been provided by the vendor, agent and GOTO Group and may not be accurate. Please refer to the property’s Legal Pack. (You can download this once you have registered your interest against the property). This pack provides material information which will help you make an informed decision before proceeding. It may not yet include everything you need to know so please make sure you do your own due diligence as well.

EPC Rating

Current 47/61Potential

Council Tax Band

A

Opening Bid and Reserve Price

This Property is subject to an undisclosed Reserve Price which in general will not be 10% more than the Opening Bid. The Reserve Price and Opening Bid can be subject to change. The Online Auction terms and conditions apply.

Comments

This property is offered for sale via Online Auction which is a flexible and buyer friendly method of purchase. The purchaser will not be exchanging contracts on the fall of the virtual hammer, but will be given 56 working days in which to exchange and complete the transaction from the date the Draft Contract is issued by the sellers solicitor.

By giving a buyer time to exchange contracts on the property, normal residential finance can be arranged. The Buyer’s Premium secures the transaction and takes the property off the market. Fees paid to the Auctioneer reserve the property to the buyer during the Reservation Period and are paid in addition to the purchase price and are considered within calculations for Stamp Duty Land Tax. Further clarification on this must be sought from your legal representative.

The buyer will be required to give the Auctioneer authority to sign the Reservation Form on their behalf and to confirm acceptance of the Terms and Conditions prior to solicitors being instructed. Copies of the Reservation Form and all Terms and Conditions can be found in the Information Pack which can be downloaded from our website or requested from our Auctioneer.

If the vendor accepts an offer, the buyer will be required to make payment of a non-refundable reservation fee of £6,600 including VAT and a legal pack charge of £396 including VAT. This reserves the property for the buyer during the Reservation Period. Any additional fees and charges over and above this will be confirmed within the terms and conditions available on the website.

The Buyer's Premium is in addition to the final selling price and is considered within calculations for Stamp Duty Land Tax.

All buyers will be required to verify their identity and provide proof of how the purchase will be funded.

Buyer's Administration Charge

If the Buyer Information Pack has been produced and provided by GOTO Group any successful purchaser will be required to pay the fee specified above towards the cost of the preparation of the pack. These can then be used by your solicitor to progress the sale.

Buyer Fees

There are no other fees or charges payable to the Auctioneer however, there are other costs to consider such as:

  • You will need a Solicitor to act for you during the conveyancing and your Solicitor will advise you in relation to the associated costs. If you do not have a Solicitor, we can recommend the services of one of our Panel Solicitors who are all selected for their expertise in Auction Transactions. Please call the number below for more information.
  • Stamp Duty Land Tax (SDLT) is applicable if you buy a property or land over a certain price in England, Wales or Northern Ireland. Please click here for more information.

Energy Performance Certificate (EPCs)

An EPC is broadly like the labels provided with domestic appliances such as refrigerators and washing machines. Its purpose is to record how energy efficient a property is as a building. The certificate will provide a rating of the energy efficiency and carbon emissions of a building from A to G, where A is very efficient, and G is inefficient. The data required to allow the calculation of an EPC includes the age and construction of the building, its insulation and heating method. EPCs are produced using standard methods with standard assumptions about energy usage so that the energy efficiency of one building can easily be compared with another building of the same type. The Energy Performance of Buildings Directive (EPBD) requires that all buildings have an EPC when they are marketed for sale or for let, or when houses are newly built. EPCs are valid for 10 years, or until a newer EPC is prepared. During this period the EPC may be made available to buyers or new tenants.

Loading the bidding panel...

Agreement Documents

Additional Documents

Related Documents

Share