FREEHOLD
The Property Features
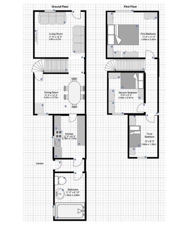
• Three spacious bedrooms
• Easily flow of the living, dining and kitchen
• Fitted wardrobes providing extra storage.
• Full Double Glazing
• Located at the heart of Belgrave, thus having access to many restaurants and shops
• Family friendly neighborhood
This delightful, terraced home featuring three spacious bedrooms is tucked away in the bustling city centre and provides unmatched urban convenience. This home, which is close to a variety of stores, restaurants and entertainment places, strikes the ideal mix between a busy lifestyle and comfortable living. The living, dining, and kitchen areas of the main floor are thoughtfully designed to flow together, producing a spacious and welcoming place that is perfect for both daily living and hosting guests. Despite its small size, the kitchen is incredibly well-designed, with plenty of cabinets that maximise efficiency and storage.
The household has a single, easily accessible bathroom with high-quality fixtures that combine design and functionality. Two of the three bedrooms upstairs include built-in wardrobes, which offer plenty of storage and ensure a cosy, clutter-free space. The roomy third bedroom can be used as a guest room, home office, or extra living space thanks to its versatile layout. A compact but comfortable garden outside offers a peaceful haven from the bustle of the city, perfect for outdoor eating or just relaxing in. To provide even more storage options, there is a storeroom accessible from the garden.
This property, which is in an appealing neighborhood, has a great location, a practical layout, and a warm, neighborhood feel. This three-bedroom terraced house is a great alternative for individuals looking for comfort, convenience, and a lively urban lifestyle because of its well-thought-out design and plenty of storage possibilities.
Material information:
The information above has been provided by the vendor, agent and GOTO Group and may not be accurate. Please refer to the property’s Legal Pack. (You can download this once you have registered your interest against the property). This pack provides material information which will help you make an informed decision before proceeding. It may not yet include everything you need to know so please make sure you do your own due diligence as well.
Current 62 / 85 Potential
This property is offered for sale via the Reservation Fee Service which is a flexible and buyer friendly method of purchase. The purchaser will be given 90 working days in which to complete the transaction from the date the Draft Contract is issued by the sellers solicitor.
By giving a buyer time to exchange contracts on the property, normal residential finance can be arranged. The Buyer’s Premium secures the transaction and takes the property off the market. Fees paid to the Merchant may be considered as part of the chargeable consideration for the property and be included in the calculation for stamp duty liability. Further clarification on this must be sought from your legal representative.
The buyer will be required to give the Merchant authority to sign the Reservation Form on their behalf and to confirm acceptance of the Terms and Conditions prior to solicitors being instructed. Copies of the Reservation Form and all Terms and Conditions can be found in the Information Pack which can be downloaded from our website or requested from our Merchant.
If the vendor accepts an offer, the buyer will be required to make payment of a non-refundable reservation fee of £3,120 including VAT and a legal pack charge of £396 including VAT. This reserves the property for the buyer during the Reservation Period. Any additional fees and charges over and above this will be confirmed within the terms and conditions available on the website.
The Buyer's Premium is in addition to the final selling price and is considered within calculations for Stamp Duty Land Tax.
All buyers will be required to verify their identity and provide proof of how the purchase will be funded.
An EPC is broadly like the labels provided with domestic appliances such as refrigerators and washing machines. Its purpose is to record how energy efficient a property is as a building. The certificate will provide a rating of the energy efficiency and carbon emissions of a building from A to G, where A is very efficient, and G is inefficient. The data required to allow the calculation of an EPC includes the age and construction of the building, its insulation and heating method. EPCs are produced using standard methods with standard assumptions about energy usage so that the energy efficiency of one building can easily be compared with another building of the same type. The Energy Performance of Buildings Directive (EPBD) requires that all buildings have an EPC when they are marketed for sale or for let, or when houses are newly built. EPCs are valid for 10 years, or until a newer EPC is prepared. During this period the EPC may be made available to buyers or new tenants.
By setting a proxy bid, the system will automatically bid on your behalf to maintain your position as the highest bidder, up to your proxy bid amount. If you are outbid, you will be notified via email so you can opt to increase your bid if you so choose.
If two of more users place identical bids, the bid that was placed first takes precedence, and this includes proxy bids.
Another bidder placed an automatic proxy bid greater or equal to the bid you have just placed. You will need to bid again to stand a chance of winning.