01844 355023    

St Catherine’s Church Abergele Road, Old Colwyn, Conwy, LL29 9RU

  • Conditional Online Auction Sale

ONLINE AUCTION FOR THIS PROPERTY IN OLD COLWYN - LL29

Tenure

FREEHOLD

Description

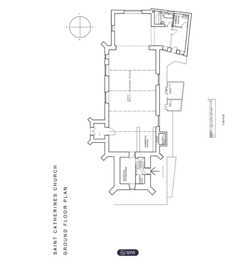
Combined live/work space. Stunning grade 2 listed Gothic revival church in the heart of the conservation area of the beautiful town of Old Colwyn. Benefiting from newly granted planning permission and listed building consent, for mixed residential/retail/café/dining/restaurant/gallery usage, you could potentially do almost anything you want with it. Only 100 m from the beach and with sea views from the tower, this exceptional building boasts approximately 2227 ft.2 of commercial space, alongside 786 ft.2 of residential space. With permission for solar pv panels to the south roof, the potential for generating electricity for the premises, or to sell back to the National Grid is an additional useful feature.

In line with the Business and Planning Act 2020, this property benefits from Class E and Class F1 usage. See details below.

The commercial space occupies the ground floor main body of the former church, including the nave, chancel, sanctuary, and vestry. The residential space is situated within the tower, comprising 3 floors plus additional mezzanine floor and roof terrace, with stunning views across the town in every direction and including sea views.

With exceptional stained glass windows throughout, encaustic floor-tiling, alongside Gothic decoration and stencilling, the property also benefits from three-phase electricity and gas fired central heating.

Situated in the beautiful town of Old Colwyn, just adjacent to the retail area, slightly set back from the main road. Close to excellent transport links, including the A55 Expressway, cycle routes, bus and rail links.

Spec Continued

Business and Planning Act 2020

The Business and Planning Act 2020 introduced a significant change to the Use Classes Order. Essentially, the new regulations (effective from 1 September 2020) introduce a broad category of ‘commercial, business and service’ uses, known as Class E, along with Class F ‘community and learning’.

The existing Classes A1 to A5, B1, D1 and D2 are revoked.

The new Class E effectively amalgamates the existing Class A1 (retail), Class A2 (financial and professional services), A3 (restaurants/cafes), B1 (offices) along with health/medical uses, creches, nurseries (all formerly D1 uses) and indoor sports/recreation (formerly D2 use). Permission is not required to change between any of the uses within the new Class E.

Class F1 – learning and non-residential institutions

This includes educational establishments, museums, galleries (display not sale), libraries, exhibition hall/public hall, place of worship or religious institution, law courts.

Property Ownership Information

Tenure

Freehold

Council Tax Band

A

Material information:
The information above has been provided by the vendor, agent and GOTO Group and may not be accurate. Please refer to the property’s Legal Pack. (You can download this once you have registered your interest against the property). This pack provides material information which will help you make an informed decision before proceeding. It may not yet include everything you need to know so please make sure you do your own due diligence as well.

Opening Bid and Reserve Price

This Property is subject to an undisclosed Reserve Price which in general will not be 10% more than the Opening Bid. The Reserve Price and Opening Bid can be subject to change. The Online Auction terms and conditions apply.

Comments

This property is offered for sale via Online Auction which is a flexible and buyer friendly method of purchase. The purchaser will not be exchanging contracts on the fall of the virtual hammer, but will be given 56 working days in which to exchange and complete the transaction from the date the Draft Contract is issued by the sellers solicitor.

By giving a buyer time to exchange contracts on the property, normal residential finance can be arranged. The Buyer’s Premium secures the transaction and takes the property off the market. Fees paid to the Auctioneer reserve the property to the buyer during the Reservation Period and are paid in addition to the purchase price and are considered within calculations for Stamp Duty Land Tax. Further clarification on this must be sought from your legal representative.

The buyer will be required to give the Auctioneer authority to sign the Reservation Form on their behalf and to confirm acceptance of the Terms and Conditions prior to solicitors being instructed. Copies of the Reservation Form and all Terms and Conditions can be found in the Information Pack which can be downloaded from our website or requested from our Auctioneer.

If the vendor accepts an offer, the buyer will be required to make payment of a non-refundable reservation fee of £6,624 including VAT and a legal pack charge of £372 including VAT. This reserves the property for the buyer during the Reservation Period. Any additional fees and charges over and above this will be confirmed within the terms and conditions available on the website.

The Buyer's Premium is in addition to the final selling price and is considered within calculations for Stamp Duty Land Tax.

All buyers will be required to verify their identity and provide proof of how the purchase will be funded.

Buyer's Administration Charge

If the Buyer Information Pack has been produced and provided by GOTO Group any successful purchaser will be required to pay the fee specified above towards the cost of the preparation of the pack. These can then be used by your solicitor to progress the sale.

Buyer Fees

There are no other fees or charges payable to the Auctioneer however, there are other costs to consider such as:

  • You will need a Solicitor to act for you during the conveyancing and your Solicitor will advise you in relation to the associated costs. If you do not have a Solicitor, we can recommend the services of one of our Panel Solicitors who are all selected for their expertise in Auction Transactions. Please call the number below for more information.
  • Stamp Duty Land Tax (SDLT) is applicable if you buy a property or land over a certain price in England, Wales or Northern Ireland. Please click here for more information.

Energy Performance Certificate (EPCs)

An EPC is broadly like the labels provided with domestic appliances such as refrigerators and washing machines. Its purpose is to record how energy efficient a property is as a building. The certificate will provide a rating of the energy efficiency and carbon emissions of a building from A to G, where A is very efficient, and G is inefficient. The data required to allow the calculation of an EPC includes the age and construction of the building, its insulation and heating method. EPCs are produced using standard methods with standard assumptions about energy usage so that the energy efficiency of one building can easily be compared with another building of the same type. The Energy Performance of Buildings Directive (EPBD) requires that all buildings have an EPC when they are marketed for sale or for let, or when houses are newly built. EPCs are valid for 10 years, or until a newer EPC is prepared. During this period the EPC may be made available to buyers or new tenants.

Loading the bidding panel...

Office Contact

Auction Concierge Specialist
01844 355023

Agreement Documents

Legal Documents

Log in to view legal documents

Additional Documents

Related Documents

Share