01844 355023    

24 Water Street, Kidwelly, Dyfed, SA17 5BX

  • Conditional Online Auction Sale
  • Bedrooms: 3

GOTO GROUP ARE PLEASED TO LIST THIS THREE BEDROOM TERRACED HOUSE FOR SALE - LOCATED IN KIDWELLY

Tenure

FREEHOLD

Description

The Property
*****Ideal for first time buyers or investors*****

Situated in the heart of the ancient township of Kidwelly a 2/3 bedroom mid terrace house in need of modernisation situated within walking distance to the town centre and local amenities. Famous for it's Norman Castle, Kidwelly is conveniently located approximately 9 miles from both Llanelli and the county town of Carmarthen. Kidwelly town centre offers a full range of every day facilities including shops, post office, public houses and restaurants and a railway station on the main Fishguard to Paddington line. Local recreational facilities include Pembrey Country Park, Cefn Sidan Sands, The National Botanic Gardens, Ffos Las Racecourse and golf at nearby Glyn Abbey and Ashburnham.
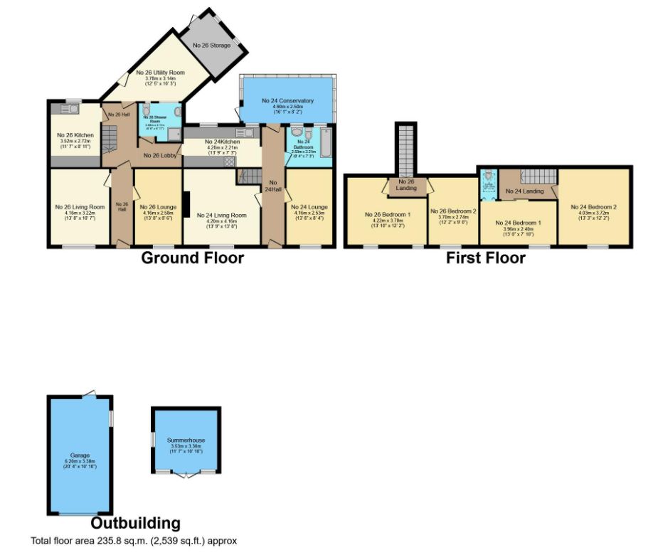
The accommodation which is in need of modernisation is arranged over two floors as follows: GROUND FLOOR: Hallway, Lounge, Living Room, Kitchen, Bathroom, Conservatory. FIRST FLOOR: Two Bedrooms and a W.C. Large rear garden with views towards Kidwelly Castle and a Detached Garage.

Ground Floor
HALL entered via UPVC double glazed door. Doors to:

LIVING ROOM 13'9" x 13'8" approx. UPVC double glazed window to the front. Tiled fireplace.

LOUNGE 13'8" x 8'4" approx. UPVC double glazed window to the front. Tiled fireplace. This room is currently used as a bedroom.

KITCHEN 13'9" x 7'3" approx. Fitted with a range of eye and base level units. Stainless steel sink unit with side drainer. Plumbing for washing machine. Space for free standing oven. Gas fired combination boiler. UPVC double glazed window to the rear. Access to No 26.

BATHROOM 8'4" x 7'3" approx. Fitted with an easy access panelled bath. Low flush W.C. Wash hand basin. Two UPVC double glazed windows to the rear. Shaver point. Part tiled walls.

CONSERVATORY 16'1" x 8'2" approx. UPVC construction on a block built plinth. Poly carbonate roof. Door to outside.

First Floor
LANDING with access to:

BEDROOM ONE 13'0" x 7'10" approx. UPVC double glazed window to the front.

BEDROOM TWO 13'3" x 12'2" approx. UPVC double glazed window to the front. Under eaves storage space.

Outside
To the rear of the property is a large garden area which is laid to lawn and fitted with a Summerhouse.The garden enjoys fine views towards nearby Kidwelly Castle. A lane to the rear allows access to parking spaces for two vehicles and leads to:

DETACHED GARAGE 20'4" x 10'10" approx. Fitted with an electric roller shutter door.

General Information
Tenure: Freehold

Services: We understand that the property is served by mains water, gas , electricity and drainage.

Council Tax Band: C

Disclaimer for virtual viewings
Some or all information pertaining to this property may have been provided solely by the vendor, and although we always make every effort to verify the information provided to us, we strongly advise you to make further enquiries before continuing.

If you book a viewing or make an offer on a property that has had its valuation conducted virtually, you are doing so under the knowledge that this information may have been provided solely by the vendor, and that we may not have been able to access the premises to confirm the information or test any equipment. We therefore strongly advise you to make further enquiries before completing your purchase of the property to ensure you are happy with all the information provided.

Brochures

EPC Rating

current 64 / 81 potential

Opening Bid and Reserve Price

This Property is subject to an undisclosed Reserve Price which in general will not be 10% more than the Opening Bid. The Reserve Price and Opening Bid can be subject to change. The Online Auction terms and conditions apply.

Comments

This property is offered for sale via Online Auction which is a flexible and buyer friendly method of purchase. The purchaser will not be exchanging contracts on the fall of the virtual hammer, but will be given 56 working days in which to exchange and complete the transaction from the date the Draft Contract is issued by the sellers solicitor.

By giving a buyer time to exchange contracts on the property, normal residential finance can be arranged. The Buyer’s Premium secures the transaction and takes the property off the market. Fees paid to the Auctioneer reserve the property to the buyer during the Reservation Period and are paid in addition to the purchase price and are considered within calculations for Stamp Duty Land Tax. Further clarification on this must be sought from your legal representative.

The buyer will be required to give the Auctioneer authority to sign the Reservation Form on their behalf and to confirm acceptance of the Terms and Conditions prior to solicitors being instructed. Copies of the Reservation Form and all Terms and Conditions can be found in the Information Pack which can be downloaded from our website or requested from our Auctioneer.

If the vendor accepts an offer, the buyer will be required to make payment of a non-refundable reservation fee of £6,600 including VAT and a legal pack charge of £372 including VAT. This reserves the property for the buyer during the Reservation Period. Any additional fees and charges over and above this will be confirmed within the terms and conditions available on the website.

The Buyer's Premium is in addition to the final selling price and is considered within calculations for Stamp Duty Land Tax.

All buyers will be required to verify their identity and provide proof of how the purchase will be funded.

Buyer's Administration Charge

If the Buyer Information Pack has been produced and provided by GOTO Group any successful purchaser will be required to pay the fee specified above towards the cost of the preparation of the pack. These can then be used by your solicitor to progress the sale.

Buyer Fees

There are no other fees or charges payable to the Auctioneer however, there are other costs to consider such as:

  • You will need a Solicitor to act for you during the conveyancing and your Solicitor will advise you in relation to the associated costs. If you do not have a Solicitor, we can recommend the services of one of our Panel Solicitors who are all selected for their expertise in Auction Transactions. Please call the number below for more information.
  • Stamp Duty Land Tax (SDLT) is applicable if you buy a property or land over a certain price in England, Wales or Northern Ireland. Please click here for more information.

Energy Performance Certificate (EPCs)

An EPC is broadly like the labels provided with domestic appliances such as refrigerators and washing machines. Its purpose is to record how energy efficient a property is as a building. The certificate will provide a rating of the energy efficiency and carbon emissions of a building from A to G, where A is very efficient, and G is inefficient. The data required to allow the calculation of an EPC includes the age and construction of the building, its insulation and heating method. EPCs are produced using standard methods with standard assumptions about energy usage so that the energy efficiency of one building can easily be compared with another building of the same type. The Energy Performance of Buildings Directive (EPBD) requires that all buildings have an EPC when they are marketed for sale or for let, or when houses are newly built. EPCs are valid for 10 years, or until a newer EPC is prepared. During this period the EPC may be made available to buyers or new tenants.

Loading the bidding panel...

Office Contact

Auction Concierge Specialist
01844 355023

Agreement Documents

Additional Documents

Related Documents

Share