01844 355023    

Hop Pole 22 Sandon Road, Stafford, Staffordshire, ST16 3ES

  • Conditional Online Auction Sale
  • Bedrooms: 4

GOTO GROUP ARE PLEASED TO LIST THIS FOUR BEDROOM END OF TERRACE HOUSE FOR SALE - LOCATED IN STAFFORD - ST16

Tenure

FREEHOLD

Description

The Property
Purplebricks are delighted to offer for sale with NO UPWARD CHAIN this rare opportunity to create your very own large home located close to the centre of Stafford offering local amenities, transport links and excellent local schools closeby.

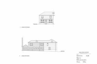
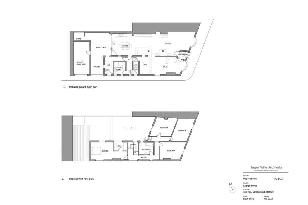
The former Hop Pole Public House has been granted planning permission to convert this property into a large four bedroom end terrace home complete with garages, off road parking and rear courtyard.

If you've ever fancied making a bespoke home then viewing is essential to appreciate the size and scope this property offers. Pull up outside and let's take a look inside....

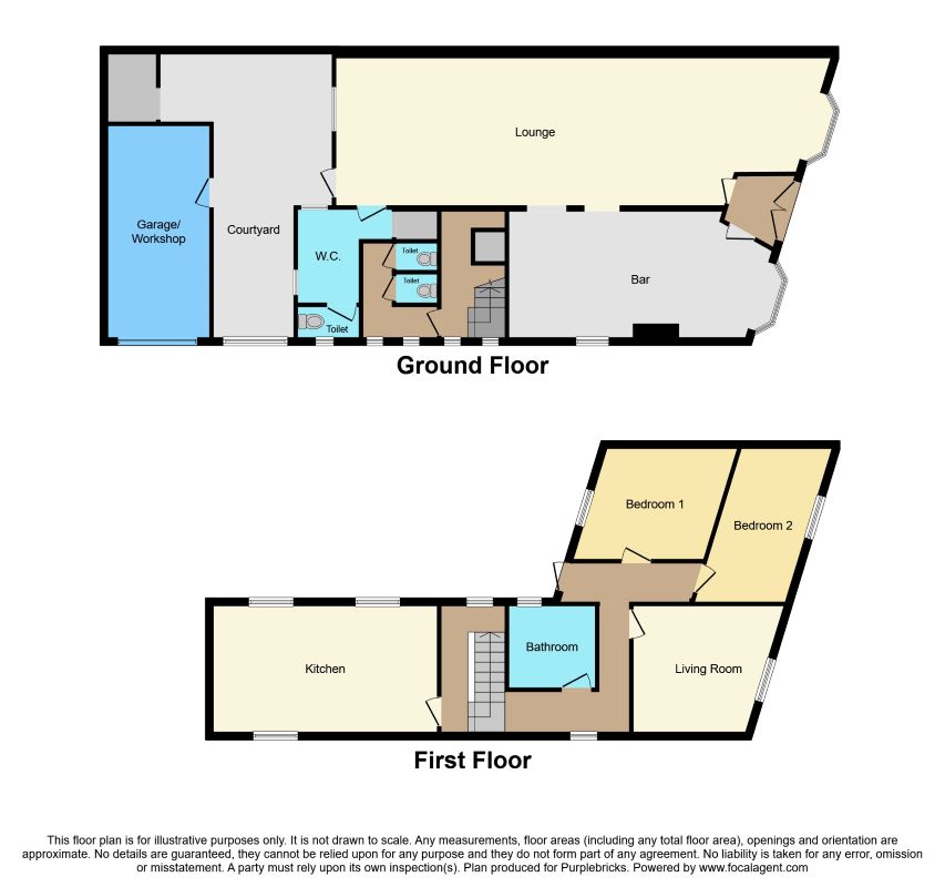
Ground Floor
The ground floor is currently the former public house offering a vast amount of space with drawings to show how this could be converted into a large living room, snug, kitchen, downstairs shower room and access to the rear courtyard. Stairs lead off to the first floor and further stairs lead to the basement.

First Floor
To the first floor is currently the living accommodation divided into a large dining/kitchen, impressive bathroom, lounge and two double bedrooms. Planning has been granted to be converted into a master suite with ensuite bathroom, three large bedrooms and a family bathroom.

Cellar
Underneath the property the cellar is divided into various different spaces offering copious amounts of storage space or further conversion to basement rooms.

Outside
To the rear of the property are two electric roller shutter doors one giving access to the courtyard and one access to the garage. To the rear is a paved courtyard area and access to the single garage space with storage room.

Property ownership information

Tenure: Freehold

Council tax band: A

EPC Rating

CURRENT 93

Opening Bid and Reserve Price

This Property is subject to an undisclosed Reserve Price which in general will not be 10% more than the Opening Bid. The Reserve Price and Opening Bid can be subject to change. The Online Auction terms and conditions apply.

Comments

This property is offered for sale via Online Auction which is a flexible and buyer friendly method of purchase. The purchaser will not be exchanging contracts on the fall of the virtual hammer, but will be given 56 working days in which to exchange and complete the transaction from the date the Draft Contract is issued by the sellers solicitor.

By giving a buyer time to exchange contracts on the property, normal residential finance can be arranged. The Buyer’s Premium secures the transaction and takes the property off the market. Fees paid to the Auctioneer reserve the property to the buyer during the Reservation Period and are paid in addition to the purchase price and are considered within calculations for Stamp Duty Land Tax. Further clarification on this must be sought from your legal representative.

The buyer will be required to give the Auctioneer authority to sign the Reservation Form on their behalf and to confirm acceptance of the Terms and Conditions prior to solicitors being instructed. Copies of the Reservation Form and all Terms and Conditions can be found in the Information Pack which can be downloaded from our website or requested from our Auctioneer.

If the vendor accepts an offer, the buyer will be required to make payment of a non-refundable reservation fee of £6,582 including VAT and a legal pack charge of £372 including VAT. This reserves the property for the buyer during the Reservation Period. Any additional fees and charges over and above this will be confirmed within the terms and conditions available on the website.

The Buyer's Premium is in addition to the final selling price and is considered within calculations for Stamp Duty Land Tax.

All buyers will be required to verify their identity and provide proof of how the purchase will be funded.

Buyer's Administration Charge

If the Buyer Information Pack has been produced and provided by GOTO Group any successful purchaser will be required to pay the fee specified above towards the cost of the preparation of the pack. These can then be used by your solicitor to progress the sale.

Buyer Fees

There are no other fees or charges payable to the Auctioneer however, there are other costs to consider such as:

  • You will need a Solicitor to act for you during the conveyancing and your Solicitor will advise you in relation to the associated costs. If you do not have a Solicitor, we can recommend the services of one of our Panel Solicitors who are all selected for their expertise in Auction Transactions. Please call the number below for more information.
  • Stamp Duty Land Tax (SDLT) is applicable if you buy a property or land over a certain price in England, Wales or Northern Ireland. Please click here for more information.

Energy Performance Certificate (EPCs)

An EPC is broadly like the labels provided with domestic appliances such as refrigerators and washing machines. Its purpose is to record how energy efficient a property is as a building. The certificate will provide a rating of the energy efficiency and carbon emissions of a building from A to G, where A is very efficient, and G is inefficient. The data required to allow the calculation of an EPC includes the age and construction of the building, its insulation and heating method. EPCs are produced using standard methods with standard assumptions about energy usage so that the energy efficiency of one building can easily be compared with another building of the same type. The Energy Performance of Buildings Directive (EPBD) requires that all buildings have an EPC when they are marketed for sale or for let, or when houses are newly built. EPCs are valid for 10 years, or until a newer EPC is prepared. During this period the EPC may be made available to buyers or new tenants.

Loading the bidding panel...

Office Contact

Auction Concierge Specialist
01844 355023

Agreement Documents

Additional Documents

Related Documents

Share